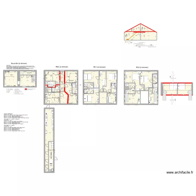
Batiment à renover
Plan de 40 et 313 m²

Détails du plan
- Plan commencé le 13/01/2026 à 12:42 par ElvisPaolini
- Modifié le 16/04/2026 à 13:27 par ElvisPaolini
- Partage : Utilisation
Mots clés
Liste des pièces
Liste des objets
Lien vers ce plan
Lien pour partager le plan Batiment à renover
Image du plan
Copier et coller le code ci dessous
Partagez ce plan
Vous aimez ce plan ?
Cliquez sur J'aime et gagnez des fonctionnalités
Plans de 40 pièces
Voir tout les plans de 40 pièces
Plans de 300 à 320 m2
Voir tout les plans de 300 à 320 m2