APPART-VIRORG-PLOMBERIE-PARTAGE
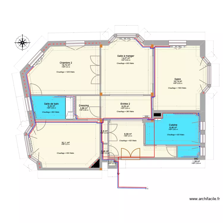
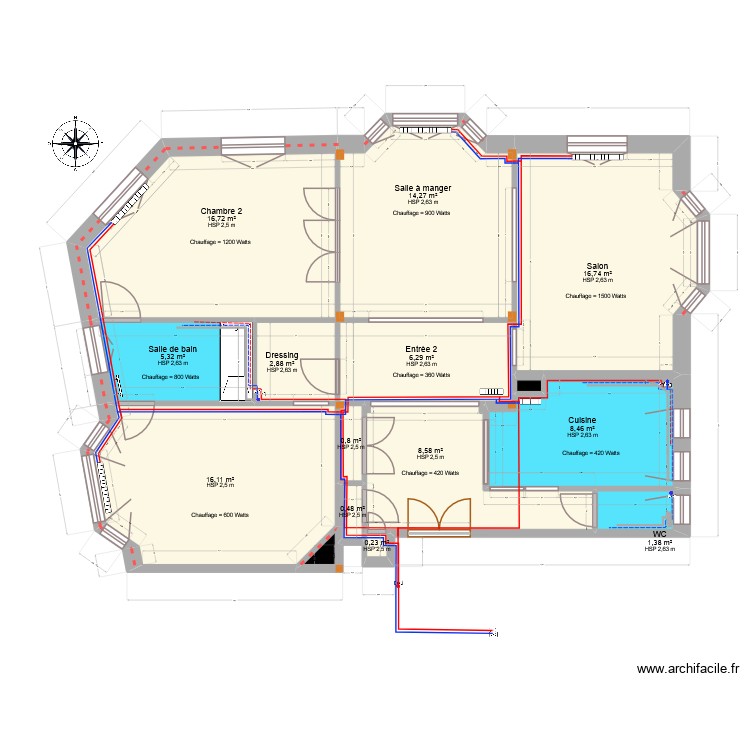
Plan de 15 et 99 m²

Détails du plan
- Plan commencé le 11/02/2026 à 11:14 par whaalavache
- Modifié le 11/02/2026 à 13:31 par whaalavache
- Partage : Lecture
Mots clés
Liste des pièces
- Salle à manger
- Entrée 2
- WC
- Salon
- Salle de bain
- Cuisine
- Chambre 2
- Dressing
Liste des objets
| Nom de l'objet | Nombre |
|---|---|
| Texte | 8 |
| Baignoire rectangulaire | 1 |
| Boussole 2 | 1 |
| Poteau béton | 11 |
| Radiateur à inertie 1500W | 2 |
| Radiateur à inertie 2500W | 4 |
| Sèche-serviettes électrique à inertie 1000 W | 1 |
| Vanne | 8 |
Lien vers ce plan
Lien pour partager le plan APPART-VIRORG-PLOMBERIE-PARTAGE
Image du plan
Copier et coller le code ci dessous
Partagez ce plan
Vous aimez ce plan ?
Cliquez sur J'aime et gagnez des fonctionnalités
Plans de 15 pièces et de 90 à 110 m2
Voir tout les plans de 15 pièces et de 90 à 110 m2
Plans de 15 pièces
Voir tout les plans de 15 pièces
Plans de 90 à 110 m2
Voir tout les plans de 90 à 110 m2