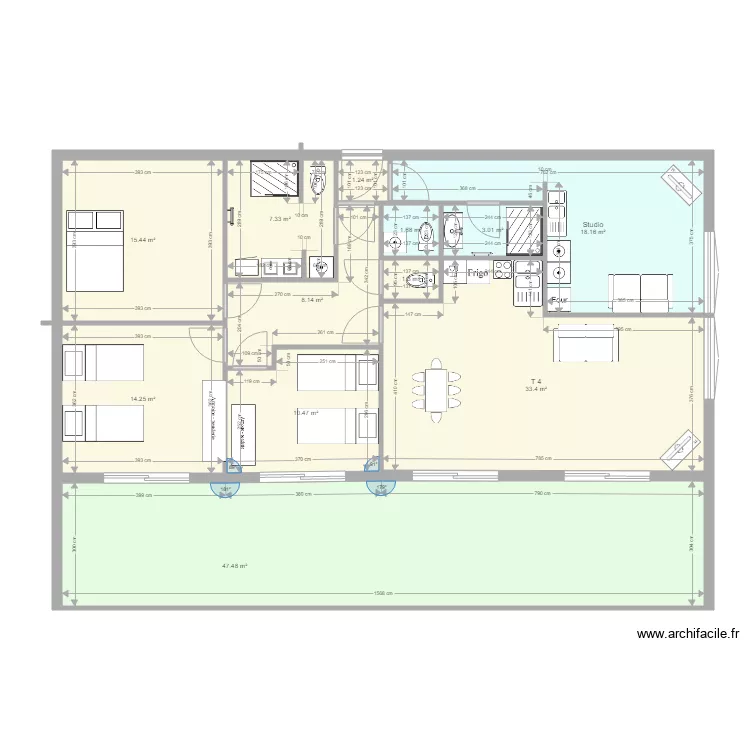
HANGAR HERPIN 1 ETAGE BIS T4 et T1
Plan de

Détails du plan
- Plan commencé le 07/08/2019 à 11:19 par nalphand
- Modifié le 07/08/2019 à 16:33 par nalphand
- Partage : Utilisation
Mots clés
Liste des pièces
Aucune pièce n'a été créé sur ce plan.
Liste des objets
Lien vers ce plan
Lien pour partager le plan HANGAR HERPIN 1 ETAGE BIS T4 et T1
Image du plan
Copier et coller le code ci dessous
Partagez ce plan
Vous aimez ce plan ?
Cliquez sur J'aime et gagnez des fonctionnalités