GARRIC PROJET
Plan de

Description
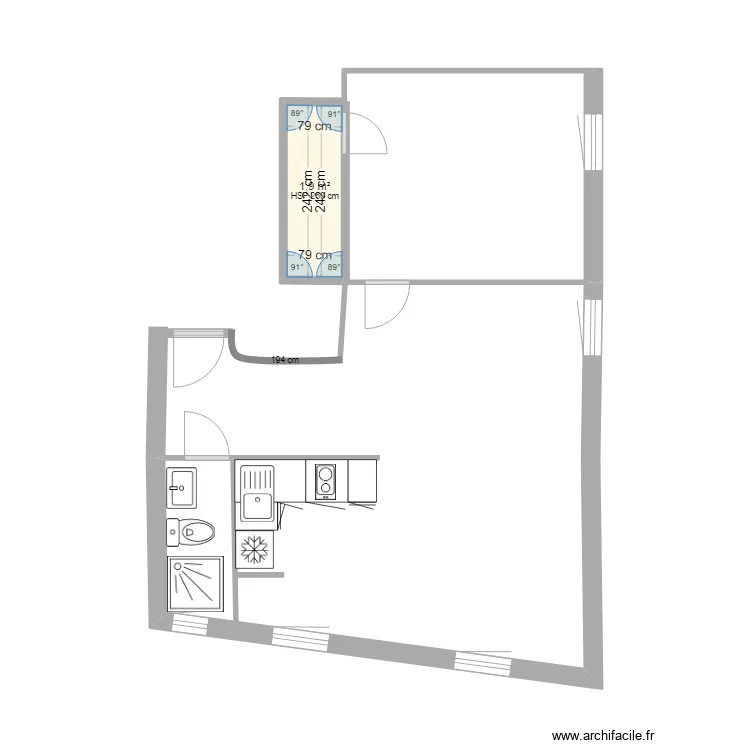
PLAN APRES DEMOLITION
Détails du plan
- Plan commencé le 29/08/2024 à 17:00 par Paul Costil
- Modifié le 16/09/2024 à 11:00 par Paul Costil
- Partage : Utilisation
Mots clés
Liste des pièces
Aucune pièce n'a été créé sur ce plan.
Liste des objets
| Nom de l'objet | Nombre |
|---|---|
| Évier 1 bac | 1 |
| Meuble 1 lavabo integré | 1 |
| Meuble cuisine 1 porte | 1 |
| Meuble cuisine 1 porte et 1 tiroir | 2 |
| Meuble cuisine d'angle | 1 |
| Plaque électrique 2 foyers | 1 |
| Receveur douche | 1 |
| Réfrigérateur | 1 |
| WC standard | 1 |
Lien vers ce plan
Lien pour partager le plan GARRIC PROJET
Image du plan
Copier et coller le code ci dessous
Partagez ce plan
Vous aimez ce plan ?
Cliquez sur J'aime et gagnez des fonctionnalités