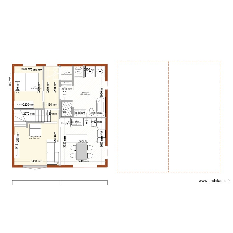
Cahlet 28 x 24

Plan de 5 pièces et 51 m2.

Détails du plan

  • Plan commencé le 29/11/24 par Gap257
  • Modifié le 09/11/25 par Gap257
  • Partage : Utilisation

Mots clés

A construire A louer A rénover A vendre Appartement Atelier Bureau Chez moi Coupe Duplex Electricité Extension Facade Ferme Garage Jardin Loft Magasin Maison Piscine
  • Liste des pièces

  • Lien vers ce plan

    Lien pour partager le plan Cahlet 28 x 24


    Image du plan

    Copier et coller le code ci dessous


    Partagez ce plan


    Vous aimez ce plan ?

    Cliquez sur J'aime et gagnez des fonctionnalités



    Signaler ce plan


    Plans de 5 pièces et de 45 à 55 m2

    dedede

    par gregGuasco

    Détails

    dedede

    rdc jluc plan electrique

    par ODAJE

    Détails

    rdc jluc plan electrique

    rdc jluc

    par ODAJE

    Détails

    rdc jluc

    Cavaillon

    par ThomasOUDART

    Détails

    Cavaillon

    Plan T1

    par Vanessa29280

    Détails

    Plan T1

    Appart maman

    par Valou77166

    Détails

    Appart maman

    DEVOIR MELEC 2

    par aldy010

    Détails

    DEVOIR MELEC 2

    Voir tout les plans de 5 pièces et de 45 à 55 m2


    Plans de 5 pièces

    Modèle maison Longère

    par Grosnel

    Détails

    Modèle maison Longère

    plan dalle posée 002

    par stephane83300

    Détails

    plan dalle posée 002

    AGRANDISSEMENT PASCAL

    par simca63

    Détails

    AGRANDISSEMENT PASCAL

    plan dalle posée 001

    par stephane83300

    Détails

    plan dalle posée 001

    plain pied

    par felp79

    Détails

    plain pied

    rez de chaussé scey

    par julien70360

    Détails

    rez de chaussé scey

    un jour

    par AMmaison

    Détails

    un jour

    plan dalle posée 209

    par stephane83300

    Détails

    plan dalle posée 209

    Voir tout les plans de 5 pièces


    Plans de 45 à 55 m2

    PLAN GALICIAN RDC GARAGE

    par NISSARD DIAGNOSTIC IMMOBILIER

    Détails

    PLAN GALICIAN RDC GARAGE

    Aaa2

    par Abd1

    Détails

    Aaa2

    les chien

    par AurelieMorin

    Détails

    les chien

    Aaa

    par Abd1

    Détails

    Aaa

    350602562

    par corentinhue

    Détails

    350602562

    Maison Lucé 3

    par ThomasGuimonet

    Détails

    Maison Lucé 3

    classe b13

    par XxAnayaXX

    Détails

    classe b13

    Voir tout les plans de 45 à 55 m2