CONTENEUR 40 PIEDS AMENAGE EN 3/4 PIECES 10 FEVRIER 2024
Plan de

Description
Projet
Détails du plan
- Plan commencé le 02/01/2025 à 11:36 par azurbleu
- Modifié le 02/01/2025 à 11:45 par azurbleu
- Partage : Utilisation
Mots clés
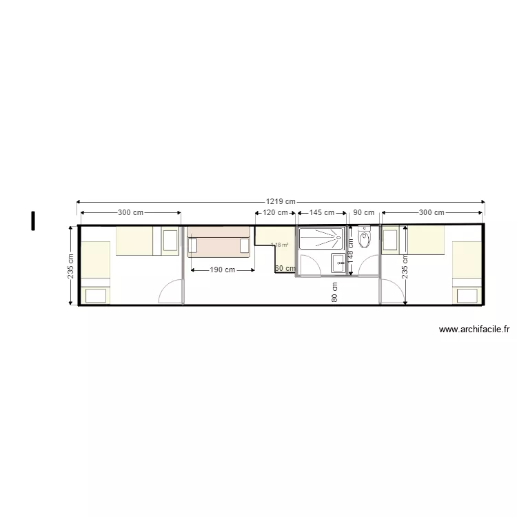
Liste des pièces
Aucune pièce n'a été créé sur ce plan.
Liste des objets
| Nom de l'objet | Nombre |
|---|---|
| Banquette clic-clac 3 places | 1 |
| Lit 1 pers | 4 |
| Meuble 1 lavabo integré | 1 |
| Receveur douche | 1 |
| WC standard | 1 |
Lien vers ce plan
Lien pour partager le plan CONTENEUR 40 PIEDS AMENAGE EN 3/4 PIECES 10 FEVRIER 2024
Image du plan
Copier et coller le code ci dessous
Partagez ce plan
Vous aimez ce plan ?
Cliquez sur J'aime et gagnez des fonctionnalités