REFECTION COEUR DU PAIN extention
Plan de

Description
PROJET COEUR DU PAIN OK
du 01/08/2017
Détails du plan
- Plan commencé le 02/01/2017 à 14:38 par GERARD BODI
- Modifié le 02/08/2017 à 08:17 par GERARD BODI
- Partage : Utilisation
Mots clés
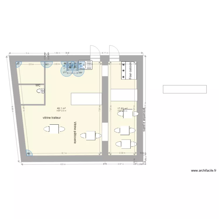
Liste des pièces
Aucune pièce n'a été créé sur ce plan.
Liste des objets
| Nom de l'objet | Nombre |
|---|---|
| Texte | 5 |
| Bar | 3 |
| Congélateur coffre 200 L | 1 |
| Évier 1 bac | 1 |
| Table 2 pers. 74 x 74 cm | 5 |
| WC standard | 1 |
Lien vers ce plan
Lien pour partager le plan REFECTION COEUR DU PAIN extention
Image du plan
Copier et coller le code ci dessous
Partagez ce plan
Vous aimez ce plan ?
Cliquez sur J'aime et gagnez des fonctionnalités