Etage2 - final draft
Plan de

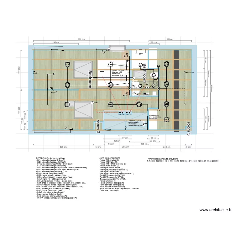
Détails du plan
- Plan commencé le 25/02/2023 à 22:44 par Dich22
- Modifié le 06/03/2023 à 23:34 par Dich22
- Partage : Utilisation
Mots clés
Liste des pièces
Aucune pièce n'a été créé sur ce plan.
Liste des objets
| Nom de l'objet | Nombre |
|---|---|
| Texte | 14 |
| Bout.pouss. stores | 1 |
| Convecteur électrique | 1 |
| Detecteur Incendie | 1 |
| Detecteur Incendie | 4 |
| Detecteur Mvt | 1 |
| Interrupteur avec voyant | 1 |
| Interrupteur double va et vient | 5 |
| Interrupteur va et vient | 3 |
| LED encastré (230V) | 11 |
| Point lumineux | 5 |
| Point lumineux applique | 4 |
| Prise 1 | 5 |
| Prise RJ | 2 |
| Prise Store | 3 |
| Prise T13 - 2USB | 2 |
| Prise triple | 3 |
| Prise volet roulant | 1 |
| Pt de jonction | 12 |
| spot encastré (12V) | 4 |
| Transfo | 3 |
Lien vers ce plan
Lien pour partager le plan Etage2 - final draft
Image du plan
Copier et coller le code ci dessous
Partagez ce plan
Vous aimez ce plan ?
Cliquez sur J'aime et gagnez des fonctionnalités