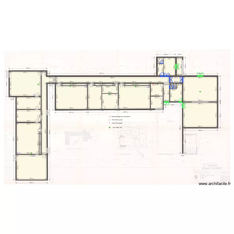
Ecole Elementaire
Plan de

Détails du plan
- Plan commencé le 15/03/2021 à 12:09 par DST85
- Modifié le 16/03/2021 à 10:34 par DST85
- Partage : Utilisation
Mots clés
Liste des pièces
Aucune pièce n'a été créé sur ce plan.
Liste des objets
| Nom de l'objet | Nombre |
|---|---|
| Texte | 4 |
| Borne WIFI | 7 |
| Meuble 1 lavabo integré | 2 |
| Prise réseau RJ45 | 19 |
| Tableau électrique | 2 |
| Tableau électrique Basse Tension | 1 |
| WC standard | 2 |
Lien vers ce plan
Lien pour partager le plan Ecole Elementaire
Image du plan
Copier et coller le code ci dessous
Partagez ce plan
Vous aimez ce plan ?
Cliquez sur J'aime et gagnez des fonctionnalités