kante
Plan de

Détails du plan
- Plan commencé le 01/04/2021 à 13:11 par supertiti
- Modifié le 01/04/2021 à 13:11 par supertiti
- Partage : Utilisation
Mots clés
Liste des pièces
Aucune pièce n'a été créé sur ce plan.
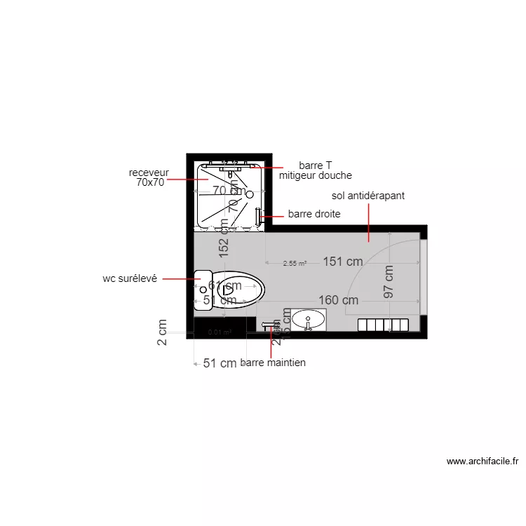
Liste des objets
| Nom de l'objet | Nombre |
|---|---|
| Texte | 6 |
| Meuble lavabo intégré | 1 |
| Radiateur à inertie 1000W | 1 |
| Receveur douche | 1 |
| rideau de douche | 1 |
| Robinet douche/bain | 1 |
| Sèche-serviettes électrique à inertie 1000 W | 3 |
| WC standard | 1 |
Lien vers ce plan
Lien pour partager le plan kante
Image du plan
Copier et coller le code ci dessous
Partagez ce plan
Vous aimez ce plan ?
Cliquez sur J'aime et gagnez des fonctionnalités