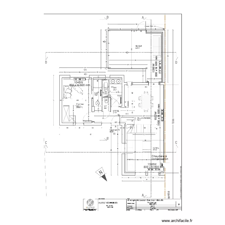
chaufage rdc ind 0 launois
Plan de

Détails du plan
- Plan commencé le 16/03/2021 à 09:34 par arnoton
- Modifié le 16/03/2021 à 20:03 par arnoton
- Partage : Utilisation
Mots clés
Liste des pièces
Aucune pièce n'a été créé sur ce plan.
Liste des objets
| Nom de l'objet | Nombre |
|---|---|
| Texte | 5 |
| Chaudière à Gaz | 1 |
| Radiateur en fonte 2350 W ( 110 W / élément ) | 4 |
| Sèche-serviettes électrique à inertie 1000 W | 2 |
Lien vers ce plan
Lien pour partager le plan chaufage rdc ind 0 launois
Image du plan
Copier et coller le code ci dessous
Partagez ce plan
Vous aimez ce plan ?
Cliquez sur J'aime et gagnez des fonctionnalités