Implantation contrôle
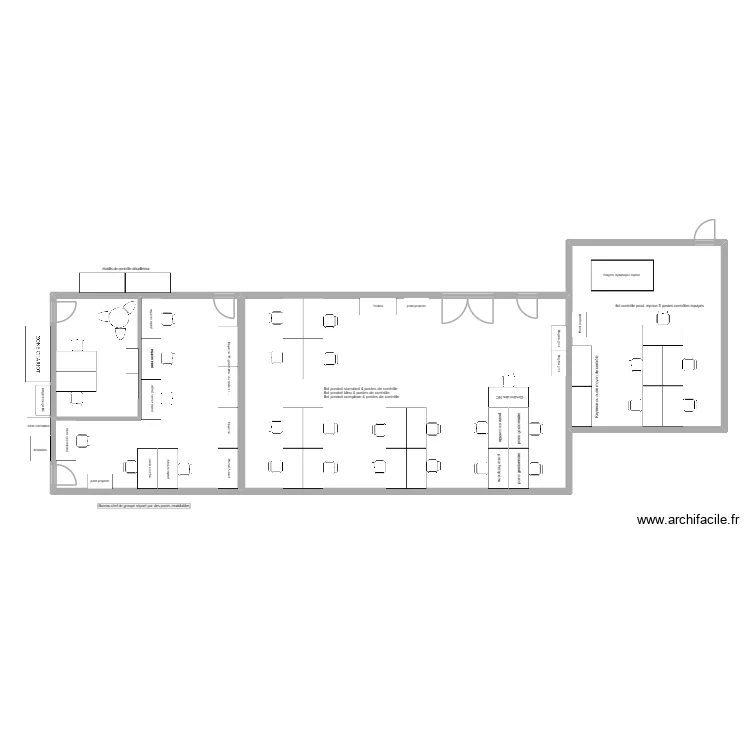
Plan de 4 et 190 m²

Détails du plan
- Plan commencé le 15/12/2025 à 20:21 par Mégane Schluchter
- Modifié le 14/01/2026 à 13:30 par Mégane Schluchter
- Partage : Utilisation
Mots clés
Liste des pièces
- Contrôle final
- Contrôle prod. Reprise
- contrôle prod. dec 1 / zone commune
- Bureau chef de groupe
Liste des objets
| Nom de l'objet | Nombre |
|---|---|
| Texte | 26 |
| Chaise de bureau | 30 |
| Etagère redimenssionnable | 1 |
| Table 3 pers. 80 x 80 cm | 1 |
| Table de bureau | 49 |
| zone chariot | 1 |
Lien vers ce plan
Lien pour partager le plan Implantation contrôle
Image du plan
Copier et coller le code ci dessous
Partagez ce plan
Vous aimez ce plan ?
Cliquez sur J'aime et gagnez des fonctionnalités
Plans de 4 pièces et de 180 à 200 m2
Voir tout les plans de 4 pièces et de 180 à 200 m2
Plans de 4 pièces
Voir tout les plans de 4 pièces
Plans de 180 à 200 m2
Voir tout les plans de 180 à 200 m2