CHANTOVENT 1
Plan de

Description
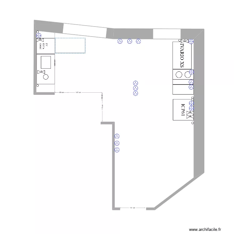
CUISINE RESTAURANT
Détails du plan
- Plan commencé le 14/08/2024 à 16:49 par alain.maury.xausapesage.fr
- Modifié le 30/08/2024 à 15:51 par alain.maury.xausapesage.fr
- Partage : Utilisation
Mots clés
Liste des pièces
Aucune pièce n'a été créé sur ce plan.
Liste des objets
| Nom de l'objet | Nombre |
|---|---|
| DESSUS 2 FEUX INDUCTION + NEUTRE 200 | 1 |
| DESSUS NEUTRE 400 SUR TIROIR CHAUFFANT | 1 |
| ELEA 1000C | 1 |
| ICP61 | 1 |
| IVARIO XS | 1 |
| Prise | 11 |
| Prise tétrapolaire | 5 |
| TABLE ENTREE ELEA1000C | 1 |
| TABLE SORTIE ELEA1000C | 1 |
| Vanne manuelle | 5 |
Lien vers ce plan
Lien pour partager le plan CHANTOVENT 1
Image du plan
Copier et coller le code ci dessous
Partagez ce plan
Vous aimez ce plan ?
Cliquez sur J'aime et gagnez des fonctionnalités