BESSABIS1
Plan de

Détails du plan
- Plan commencé le 07/02/2019 à 13:35 par supertiti
- Modifié le 07/02/2019 à 13:35 par supertiti
- Partage : Utilisation
Mots clés
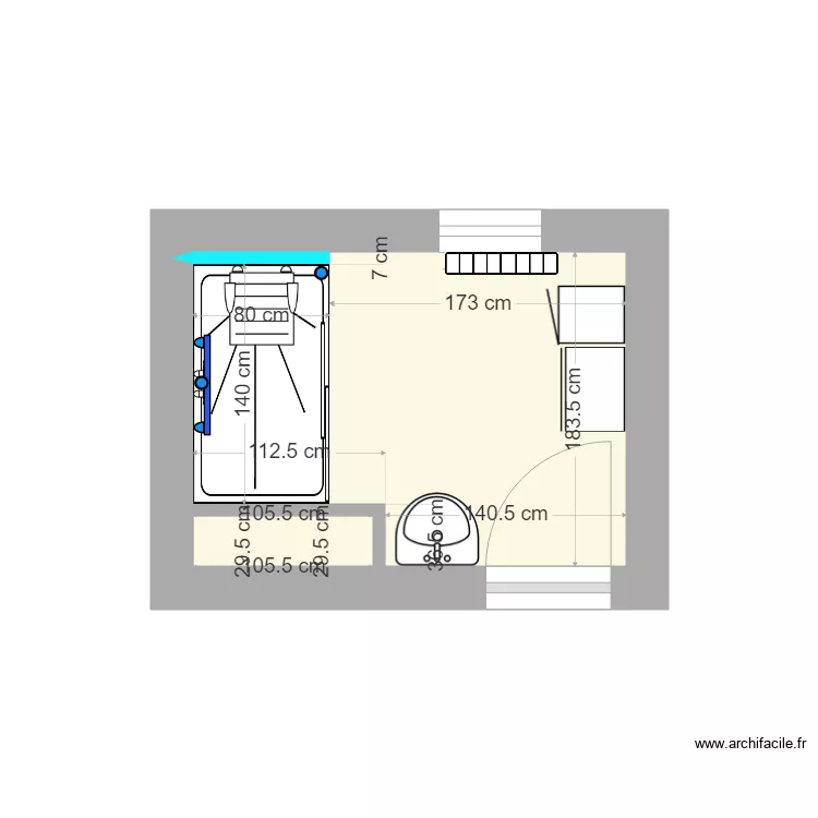
Liste des pièces
Aucune pièce n'a été créé sur ce plan.
Liste des objets
| Nom de l'objet | Nombre |
|---|---|
| barre | 1 |
| barre verticale | 2 |
| Lavabo | 1 |
| Meuble colonne | 1 |
| Meuble tiroir | 1 |
| mitigeur douche thermo | 1 |
| paroi | 2 |
| Radiateur à inertie 1500W | 1 |
| Receveur douche | 1 |
| siege douche dossier et accoudoirs | 1 |
Lien vers ce plan
Lien pour partager le plan BESSABIS1
Image du plan
Copier et coller le code ci dessous
Partagez ce plan
Vous aimez ce plan ?
Cliquez sur J'aime et gagnez des fonctionnalités