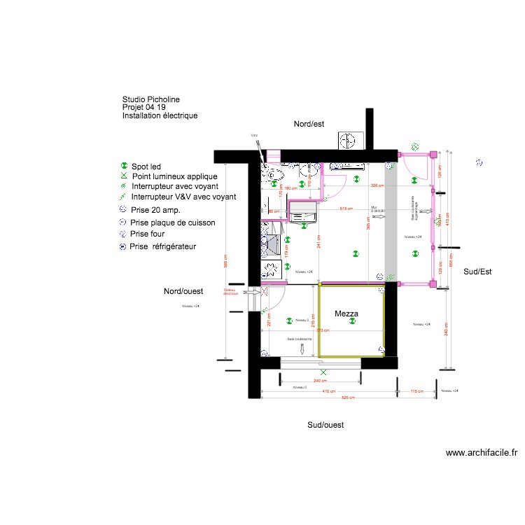
Studio Picholine Rez de chaussée 03 19 ELECTRICITÉ
Plan de 0 pièce et 0 m2.

Détails du plan
- Plan commencé le 07/03/2019 à 01:20 par dgdu84
- Modifié le 03/05/2019 à 12:18 par dgdu84
- Partage : Utilisation
Mots clés
Liste des pièces
Aucune pièce n'a été créé sur ce plan.
Liste des objets
Lien vers ce plan
Lien pour partager le plan Studio Picholine Rez de chaussée 03 19 ELECTRICITÉ
Image du plan
Copier et coller le code ci dessous
Partagez ce plan
Vous aimez ce plan ?
Cliquez sur J'aime et gagnez des fonctionnalités