Matt StromPlanOG
Plan de

Détails du plan
- Plan commencé le 07/02/2022 à 19:27 par skrootch
- Modifié le 09/02/2022 à 11:53 par skrootch
- Partage : Utilisation
Mots clés
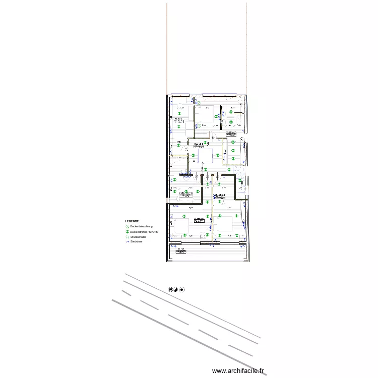
Liste des pièces
Aucune pièce n'a été créé sur ce plan.
Liste des objets
| Nom de l'objet | Nombre |
|---|---|
| Texte | 5 |
| Barrière de jardin | 2 |
| Boite de dérivation | 1 |
| Compteur d'eau | 1 |
| Eclairage plafond | 3 |
| Eclairage spot | 32 |
| Interrupteur bouton poussoir | 1 |
| Prise | 65 |
| Purgeur à condensation | 1 |
Lien vers ce plan
Lien pour partager le plan Matt StromPlanOG
Image du plan
Copier et coller le code ci dessous
Partagez ce plan
Vous aimez ce plan ?
Cliquez sur J'aime et gagnez des fonctionnalités