Resto Q
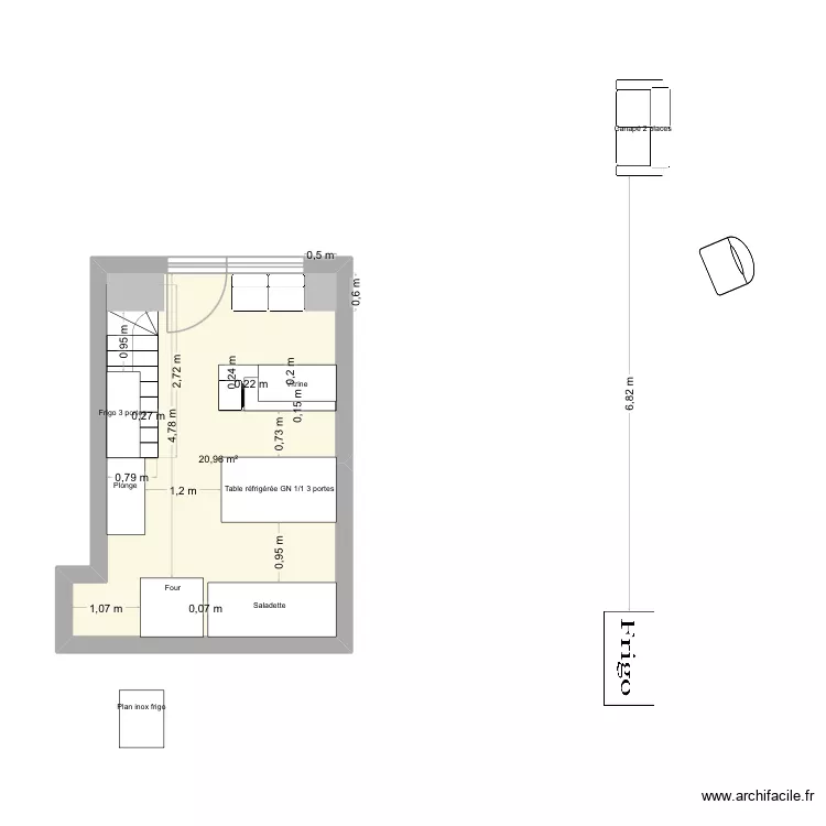
Plan de 1 pièce et 21 m²

Détails du plan
- Plan commencé le 13/12/2025 à 18:52 par slalom
- Modifié le 17/01/2026 à 18:52 par slalom
- Partage : Utilisation
Mots clés
Liste des pièces
Liste des objets
| Nom de l'objet | Nombre |
|---|---|
| Canapé 2 places | 1 |
| Chaise haute bar | 1 |
| Escalier quart tournant | 1 |
| Fauteuil 1 place | 2 |
| Plan de travail | 9 |
| Poteau béton | 2 |
| Poubelle | 1 |
| Réfrigérateur | 1 |
Lien vers ce plan
Lien pour partager le plan Resto Q
Image du plan
Copier et coller le code ci dessous
Partagez ce plan
Vous aimez ce plan ?
Cliquez sur J'aime et gagnez des fonctionnalités
Plans de 1 pièce et de 15 à 25 m2
Voir tout les plans de 1 pièce et de 15 à 25 m2
Plans de 1 pièce
Voir tout les plans de 1 pièce
Plans de 15 à 25 m2
Voir tout les plans de 15 à 25 m2