cuisine mazurier 26 09
Plan de

Détails du plan
- Plan commencé le 26/09/2025 à 10:38 par lp76
- Modifié le 11/10/2025 à 12:21 par lp76
- Partage : Utilisation
Mots clés
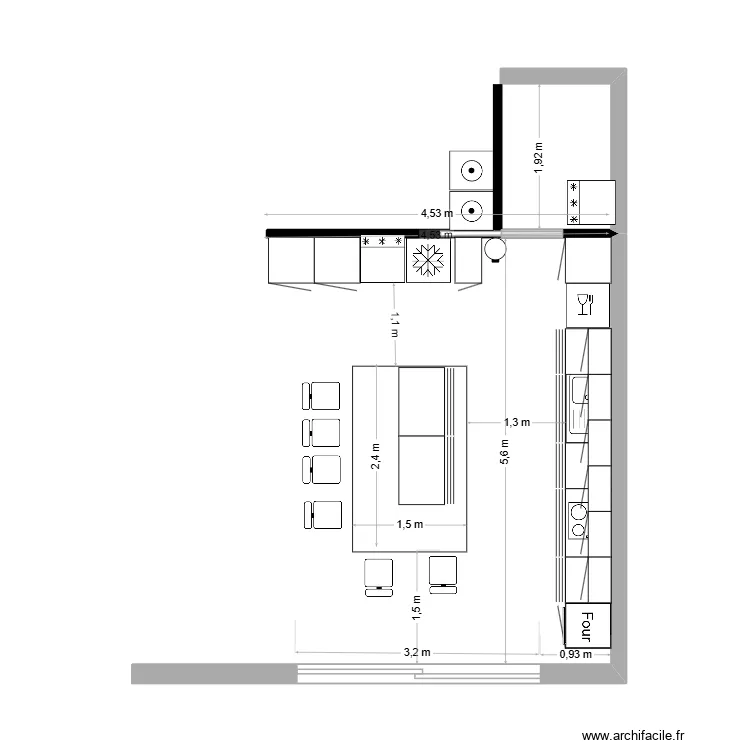
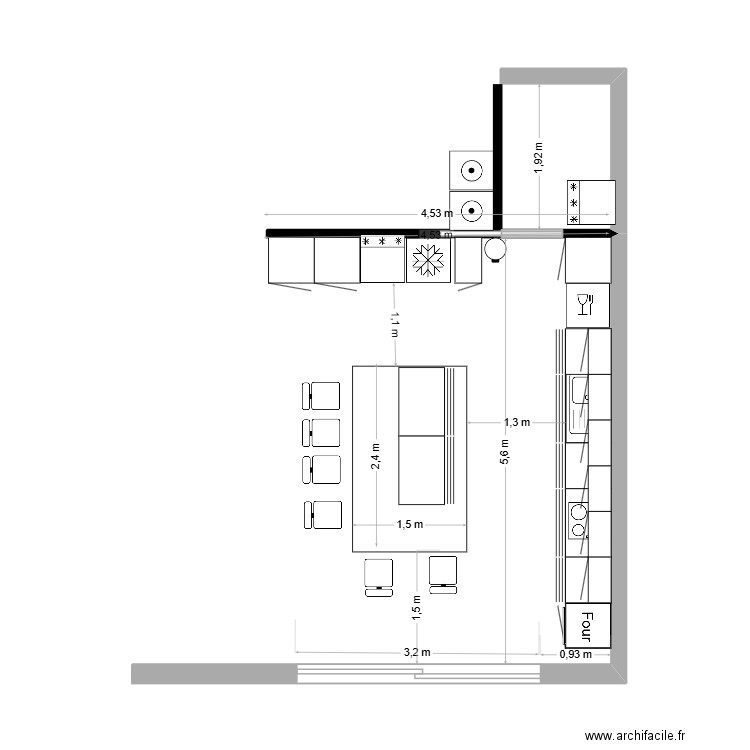
Liste des pièces
Aucune pièce n'a été créé sur ce plan.
Liste des objets
| Nom de l'objet | Nombre |
|---|---|
| Chaise haute bar | 6 |
| Congélateur armoire 200 L | 2 |
| Évier 1 bac avec meuble | 1 |
| Four | 1 |
| Ilot central | 1 |
| Lave linge hublot | 2 |
| Lave vaisselle 12 couverts | 1 |
| Meuble cuisine 1 porte | 14 |
| Meuble cuisine 1 tiroir 2 portes | 4 |
| Plaque induction 4 foyers | 1 |
| Poubelle | 1 |
| Réfrigérateur | 1 |
Lien vers ce plan
Lien pour partager le plan cuisine mazurier 26 09
Image du plan
Copier et coller le code ci dessous
Partagez ce plan
Vous aimez ce plan ?
Cliquez sur J'aime et gagnez des fonctionnalités