REZ CHAUSSEE FINI modifier
Plan de

Description
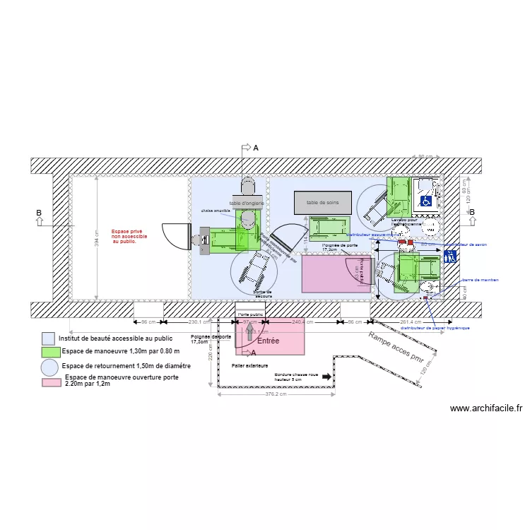
institut carole final2
Détails du plan
- Plan commencé le 18/09/2020 à 13:29 par kodav
- Modifié le 18/10/2020 à 20:26 par kodav
- Partage : Modification
Mots clés
Liste des pièces
Aucune pièce n'a été créé sur ce plan.
Liste des objets
| Nom de l'objet | Nombre |
|---|---|
| Texte | 25 |
| Accessibilité personnes à mobilité reduite | 1 |
| Bureau 100 X 50 cm | 1 |
| Cercle | 4 |
| Chaise | 2 |
| Chaise | 1 |
| Chauffe eau | 1 |
| Etagère redimenssionnable | 2 |
| Fauteuil roulant | 9 |
| Flêche | 6 |
| Lavabo | 2 |
| Receveur douche | 1 |
| Rectangle | 14 |
| Robinet douche/bain | 1 |
| Toilette mixte | 1 |
| WC standard | 1 |
Lien vers ce plan
Lien pour partager le plan REZ CHAUSSEE FINI modifier
Image du plan
Copier et coller le code ci dessous
Partagez ce plan
Vous aimez ce plan ?
Cliquez sur J'aime et gagnez des fonctionnalités