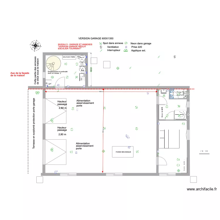
VERSION GARAGE RÉDUIT ESCALIER TOURNANT
Plan de

Description
Maison Bordes
Détails du plan
- Plan commencé le 09/11/2021 à 10:27 par Segalas
- Modifié le 09/11/2021 à 23:21 par Segalas
- Partage : Utilisation
Mots clés
Liste des pièces
Aucune pièce n'a été créé sur ce plan.
Liste des objets
| Nom de l'objet | Nombre |
|---|---|
| Texte | 20 |
| Armoire - penderie 150 cm | 2 |
| Boussole 2 | 1 |
| Chauffe eau | 1 |
| Eclairage applique | 4 |
| Eclairage plafond | 28 |
| Escalier colimaçon | 1 |
| Évier 1 bac | 1 |
| Interrupteur va et vient | 12 |
| Lave linge ouverture dessus | 1 |
| Lit King Size | 1 |
| Meuble 1 lavabo integré | 1 |
| Prise | 10 |
| Prise haute | 9 |
| Receveur douche | 1 |
| Rectangle | 6 |
| Réfrigérateur | 1 |
| Sèche linge | 1 |
| VMC bouche d'extraction | 7 |
| WC standard | 1 |
Lien vers ce plan
Lien pour partager le plan VERSION GARAGE RÉDUIT ESCALIER TOURNANT
Image du plan
Copier et coller le code ci dessous
Partagez ce plan
Vous aimez ce plan ?
Cliquez sur J'aime et gagnez des fonctionnalités