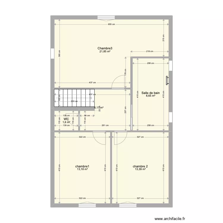
PLAN MONTEIRO ETAGE PROJET
Plan de

Détails du plan
- Plan commencé le 06/12/2022 à 16:58 par TM ELEC
- Modifié le 08/12/2022 à 13:08 par TM ELEC
- Partage : Utilisation
Mots clés
Liste des pièces
Aucune pièce n'a été créé sur ce plan.
Liste des objets
| Nom de l'objet | Nombre |
|---|---|
| Escalier droit | 1 |
| Sèche-serviettes électrique à inertie 1000 W | 1 |
Lien vers ce plan
Lien pour partager le plan PLAN MONTEIRO ETAGE PROJET
Image du plan
Copier et coller le code ci dessous
Partagez ce plan
Vous aimez ce plan ?
Cliquez sur J'aime et gagnez des fonctionnalités