CHAMBRE COCO VINC 7
Plan de

Détails du plan
- Plan commencé le 05/10/2020 à 12:48 par rod invest
- Modifié le 05/10/2020 à 12:48 par rod invest
- Partage : Utilisation
Mots clés
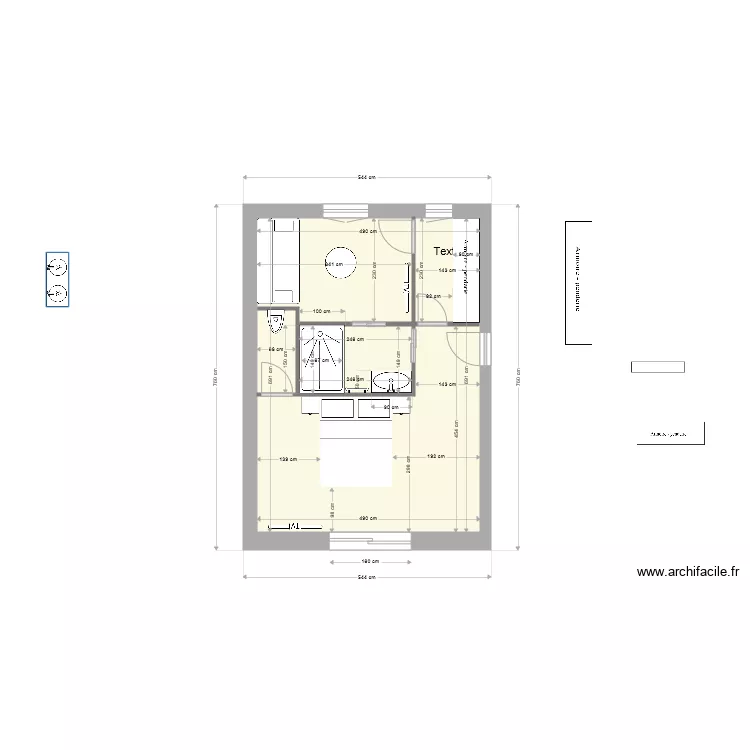
Liste des pièces
Aucune pièce n'a été créé sur ce plan.
Liste des objets
| Nom de l'objet | Nombre |
|---|---|
| Texte | 1 |
| Armoire - penderie 200 cm | 3 |
| Banquette clic-clac 3 places | 1 |
| Etagère redimenssionnable | 1 |
| Lit queen size | 1 |
| Meuble 2 vasques | 1 |
| Meuble lavabo intégré | 1 |
| Receveur douche | 1 |
| Sèche-serviettes électrique à inertie 1000 W | 1 |
| Table basse | 1 |
| Table de chevet | 2 |
| Téléviseur | 2 |
| WC suspendu | 1 |
Lien vers ce plan
Lien pour partager le plan CHAMBRE COCO VINC 7
Image du plan
Copier et coller le code ci dessous
Partagez ce plan
Vous aimez ce plan ?
Cliquez sur J'aime et gagnez des fonctionnalités