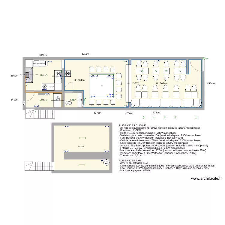
Bar après travaux banquettes
Plan de

Détails du plan
- Plan commencé le 29/07/2021 à 09:48 par Hellharicot
- Modifié le 29/07/2021 à 10:00 par Hellharicot
- Partage : Utilisation
Mots clés
Liste des pièces
Aucune pièce n'a été créé sur ce plan.
Liste des objets
| Nom de l'objet | Nombre |
|---|---|
| Texte | 11 |
| Bar | 2 |
| Chaise | 12 |
| Chauffe eau | 1 |
| Eclairage applique | 2 |
| Eclairage plafond | 13 |
| Eclairage Tube à fluorescence | 3 |
| Eclairage Tube à fluorescence double | 4 |
| Escalier droit | 1 |
| Escalier quart tournant | 2 |
| Évier 1 bac | 1 |
| Hotte murale | 1 |
| Interrupteur | 8 |
| Interrupteur bouton poussoir | 2 |
| Poubelle | 1 |
| Prise | 42 |
| Prise réseau RJ45 | 2 |
| Réfrigérateur | 1 |
| Tableau électrique | 2 |
| WC standard | 1 |
Lien vers ce plan
Lien pour partager le plan Bar après travaux banquettes
Image du plan
Copier et coller le code ci dessous
Partagez ce plan
Vous aimez ce plan ?
Cliquez sur J'aime et gagnez des fonctionnalités