MAISON 1
Plan de

Détails du plan
- Plan commencé le 05/12/2021 à 15:59 par DEGL
- Modifié le 19/12/2021 à 19:24 par DEGL
- Partage : Utilisation
Mots clés
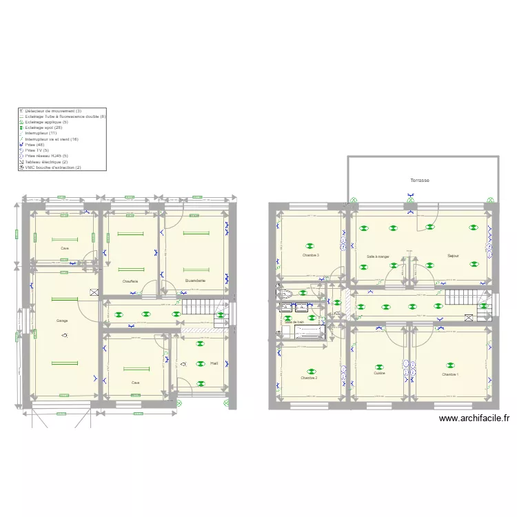
Liste des pièces
Aucune pièce n'a été créé sur ce plan.
Liste des objets
| Nom de l'objet | Nombre |
|---|---|
| Texte | 4 |
| Légende | 1 |
| Baignoire rectangulaire | 1 |
| Détecteur de mouvement | 3 |
| Eclairage applique | 5 |
| Eclairage spot | 28 |
| Eclairage Tube à fluorescence double | 8 |
| Escalier quart tournant | 2 |
| Interrupteur | 11 |
| Interrupteur va et vient | 16 |
| Meuble 1 lavabo integré | 2 |
| Plan de travail | 1 |
| Prise | 48 |
| Prise réseau RJ45 | 5 |
| Prise TV | 5 |
| Tableau électrique | 2 |
| VMC bouche d'extraction | 2 |
| WC petite taille | 1 |
Lien vers ce plan
Lien pour partager le plan MAISON 1
Image du plan
Copier et coller le code ci dessous
Partagez ce plan
Vous aimez ce plan ?
Cliquez sur J'aime et gagnez des fonctionnalités