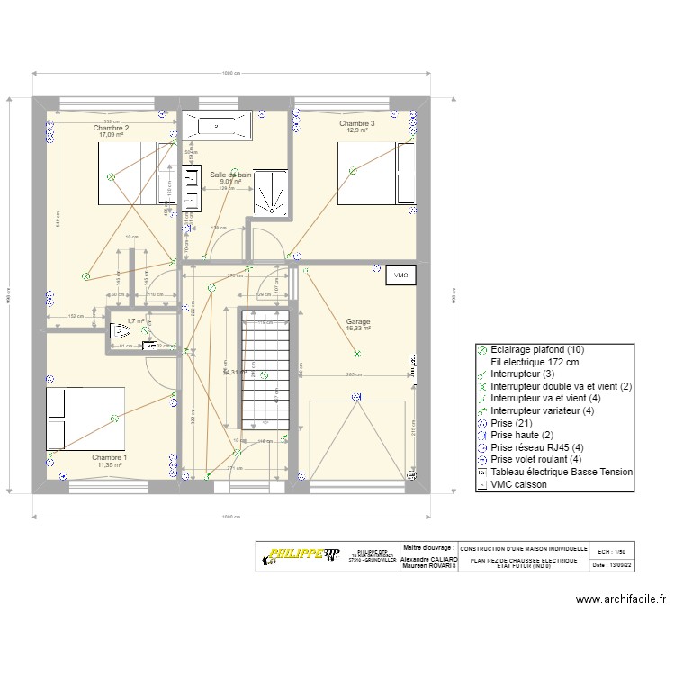
REZ DE CHAUSSEE LOT B CRUSNES ELEC
Plan de

Détails du plan
- Plan commencé le 14/09/2022 à 18:30 par James PHILIPPE
- Modifié le 14/09/2022 à 18:54 par James PHILIPPE
- Partage : Utilisation
Mots clés
Liste des pièces
Aucune pièce n'a été créé sur ce plan.
Liste des objets
| Nom de l'objet | Nombre |
|---|---|
| Texte | 5 |
| Légende | 1 |
| Baignoire rectangulaire | 1 |
| Collecteur 6 départs | 1 |
| Compteur d'eau | 1 |
| Eclairage plafond | 10 |
| Escalier droit | 1 |
| Interrupteur | 3 |
| Interrupteur double va et vient | 2 |
| Interrupteur va et vient | 4 |
| Interrupteur variateur | 4 |
| Lave main | 1 |
| Lit queen size | 3 |
| Meuble 2 lavabos | 1 |
| Prise | 21 |
| Prise haute | 2 |
| Prise réseau RJ45 | 4 |
| Prise volet roulant | 4 |
| Receveur douche | 1 |
| Rectangle | 1 |
| Tableau électrique Basse Tension | 1 |
| VMC caisson | 1 |
| WC suspendu | 1 |
Lien vers ce plan
Lien pour partager le plan REZ DE CHAUSSEE LOT B CRUSNES ELEC
Image du plan
Copier et coller le code ci dessous
Partagez ce plan
Vous aimez ce plan ?
Cliquez sur J'aime et gagnez des fonctionnalités