2EM ETAGE GAUCHE ASENCIO MODIFIE
Plan de

Détails du plan
- Plan commencé le 18/06/2018 à 15:24 par TEDESCHI
- Modifié le 18/06/2018 à 15:24 par TEDESCHI
- Partage : Utilisation
Mots clés
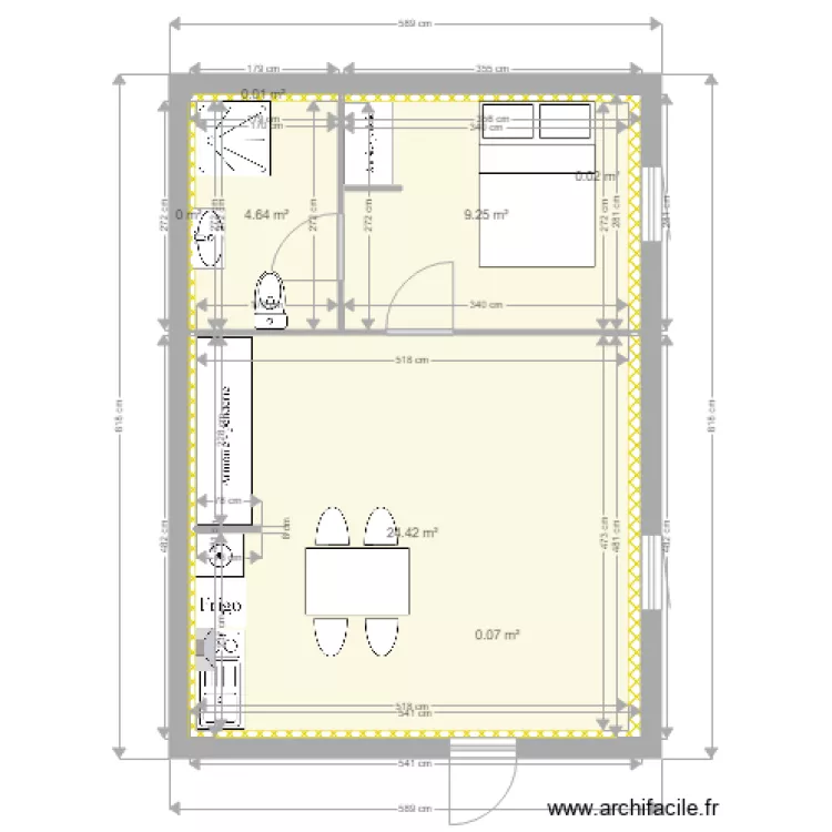
Liste des pièces
Aucune pièce n'a été créé sur ce plan.
Liste des objets
| Nom de l'objet | Nombre |
|---|---|
| Armoire - penderie 150 cm | 1 |
| Armoire - penderie 200 cm | 1 |
| Hotte murale | 1 |
| Kitchenette électrique | 1 |
| Lave linge hublot | 1 |
| Lit standard 140 x 200 cm | 1 |
| Meuble lavabo intégré | 1 |
| Receveur douche | 1 |
| Réfrigérateur | 1 |
| Table 4 - 6 pers. 80 x 125 cm | 1 |
| WC standard | 1 |
Lien vers ce plan
Lien pour partager le plan 2EM ETAGE GAUCHE ASENCIO MODIFIE
Image du plan
Copier et coller le code ci dessous
Partagez ce plan
Vous aimez ce plan ?
Cliquez sur J'aime et gagnez des fonctionnalités