PEILiving2
Plan de

Détails du plan
- Plan commencé le 27/12/2021 à 09:32 par SergeM58
- Modifié le 27/12/2021 à 12:44 par SergeM58
- Partage : Utilisation
Mots clés
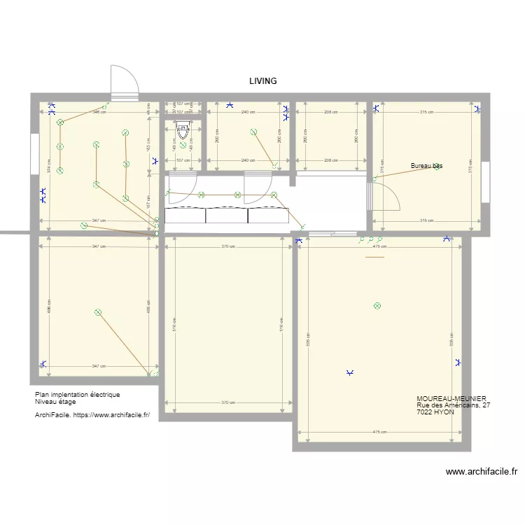
Liste des pièces
Aucune pièce n'a été créé sur ce plan.
Liste des objets
| Nom de l'objet | Nombre |
|---|---|
| Texte | 3 |
| Armoire portes battantes | 3 |
| Eclairage plafond | 17 |
| Interrupteur | 10 |
| Interrupteur bipolaire | 1 |
| Interrupteur va et vient | 2 |
| Prise | 15 |
| WC suspendu | 1 |
Lien vers ce plan
Lien pour partager le plan PEILiving2
Image du plan
Copier et coller le code ci dessous
Partagez ce plan
Vous aimez ce plan ?
Cliquez sur J'aime et gagnez des fonctionnalités