CIRCUIT DES VIANDES ET PRODUITS FINI 2
Plan de

Détails du plan
- Plan commencé le 30/03/2020 à 21:13 par gringo31
- Modifié le 01/04/2020 à 00:10 par gringo31
- Partage : Utilisation
Mots clés
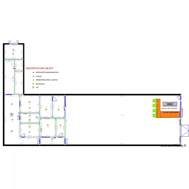
Liste des pièces
Aucune pièce n'a été créé sur ce plan.
Liste des objets
| Nom de l'objet | Nombre |
|---|---|
| Texte | 28 |
| Armoire portes coulissantes | 2 |
| ARMOIRE STERILISATEURE | 2 |
| CENTRALE DESINFECTION | 5 |
| Chaise haute bar | 4 |
| Hotte ilot | 1 |
| LAVE MAIN | 5 |
| SIPHON | 11 |
| VMC bouche d'extraction | 3 |
Lien vers ce plan
Lien pour partager le plan CIRCUIT DES VIANDES ET PRODUITS FINI 2
Image du plan
Copier et coller le code ci dessous
Partagez ce plan
Vous aimez ce plan ?
Cliquez sur J'aime et gagnez des fonctionnalités