FA4
Plan de

Description
dossier installation
Détails du plan
- Plan commencé le 18/05/2016 à 22:06 par mulleragri.gmail.com
- Modifié le 18/05/2016 à 22:06 par mulleragri.gmail.com
- Partage : Utilisation
Mots clés
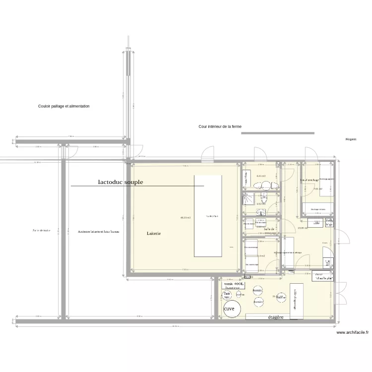
Liste des pièces
Aucune pièce n'a été créé sur ce plan.
Liste des objets
| Nom de l'objet | Nombre |
|---|---|
| Texte | 2 |
| Armoire - penderie 150 cm | 1 |
| Lave main | 2 |
| Lave vaisselle 12 couverts | 1 |
| Meuble lavabo intégré | 1 |
| Quart de cercle | 1 |
| Receveur douche | 1 |
| Rectangle | 7 |
| Table ronde 2 pers. 60 x 60 cm | 1 |
| WC standard | 1 |
Lien vers ce plan
Lien pour partager le plan FA4
Image du plan
Copier et coller le code ci dessous
Partagez ce plan
Vous aimez ce plan ?
Cliquez sur J'aime et gagnez des fonctionnalités