Boulangerie
Plan de 8 et 241 m²

Description
Boulangerie n
Détails du plan
- Plan commencé le 05/02/2026 à 11:35 par BaptisteChaux
- Modifié le 23/03/2026 à 11:32 par BaptisteChaux
- Partage : Modification
Mots clés
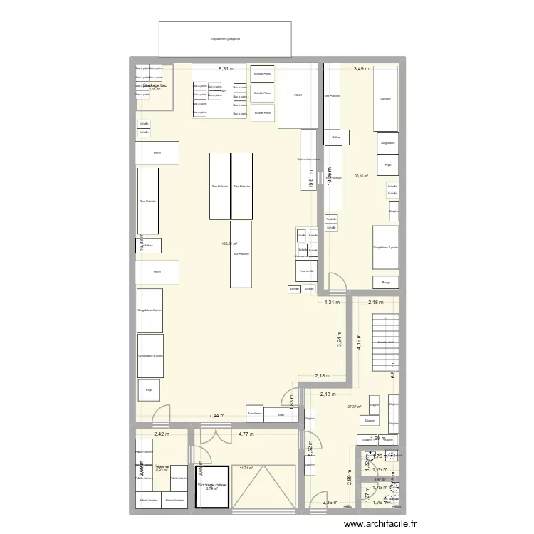
Liste des pièces
- Reserve
- Stockage caisse
- Stockage bac
Liste des objets
| Nom de l'objet | Nombre |
|---|---|
| Batteur | 2 |
| chambre de fermentation | 1 |
| Congélateur 4 portes | 3 |
| Echelle | 28 |
| Escalier droit | 1 |
| Etagère redimenssionnable | 8 |
| FOUR | 1 |
| Four ventilé | 1 |
| Frigo | 3 |
| Frigo Pain | 1 |
| Laminoir | 1 |
| Lavabo | 2 |
| Lave linge hublot | 1 |
| Petrin | 2 |
| Plonge | 1 |
| Poteau béton | 2 |
| Rectangle | 1 |
| Table | 1 |
| Tapis enfournement | 1 |
| Tour Patissier | 6 |
| Trancheuse | 1 |
| WC standard | 1 |
Lien vers ce plan
Lien pour partager le plan Boulangerie
Image du plan
Copier et coller le code ci dessous
Partagez ce plan
Vous aimez ce plan ?
Cliquez sur J'aime et gagnez des fonctionnalités
Plans de 8 pièces et de 230 à 250 m2
Voir tout les plans de 8 pièces et de 230 à 250 m2
Plans de 8 pièces
Voir tout les plans de 8 pièces
Plans de 230 à 250 m2
Voir tout les plans de 230 à 250 m2