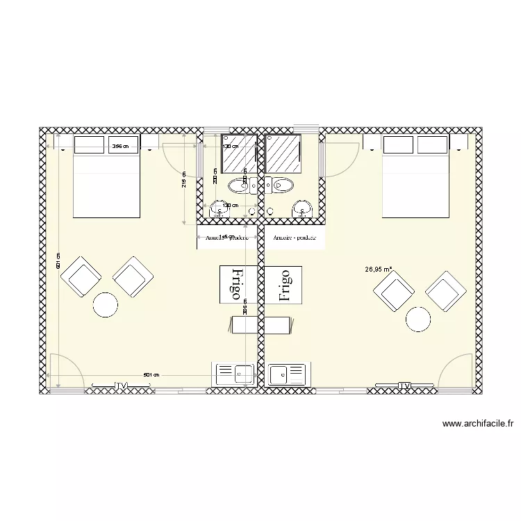
Chambre meublée Agonda
Plan de

Description
Construction de chambres meublées
Détails du plan
- Plan commencé le 06/06/2025 à 18:48 par willcox
- Modifié le 06/06/2025 à 19:49 par willcox
- Partage : Utilisation
Mots clés
Liste des pièces
Aucune pièce n'a été créé sur ce plan.
Liste des objets
| Nom de l'objet | Nombre |
|---|---|
| Armoire - penderie 150 cm | 2 |
| Cabine douche | 2 |
| Évier 1 bac avec meuble | 2 |
| Lavabo | 2 |
| Lit queen size | 2 |
| Meuble cuisine 1 porte et 1 tiroir | 2 |
| Poubelle | 2 |
| Réfrigérateur | 2 |
| Table 2 pers + fauteuils | 2 |
| Table de chevet | 4 |
| Téléviseur | 2 |
| WC standard | 2 |
Lien vers ce plan
Lien pour partager le plan Chambre meublée Agonda
Image du plan
Copier et coller le code ci dessous
Partagez ce plan
Vous aimez ce plan ?
Cliquez sur J'aime et gagnez des fonctionnalités