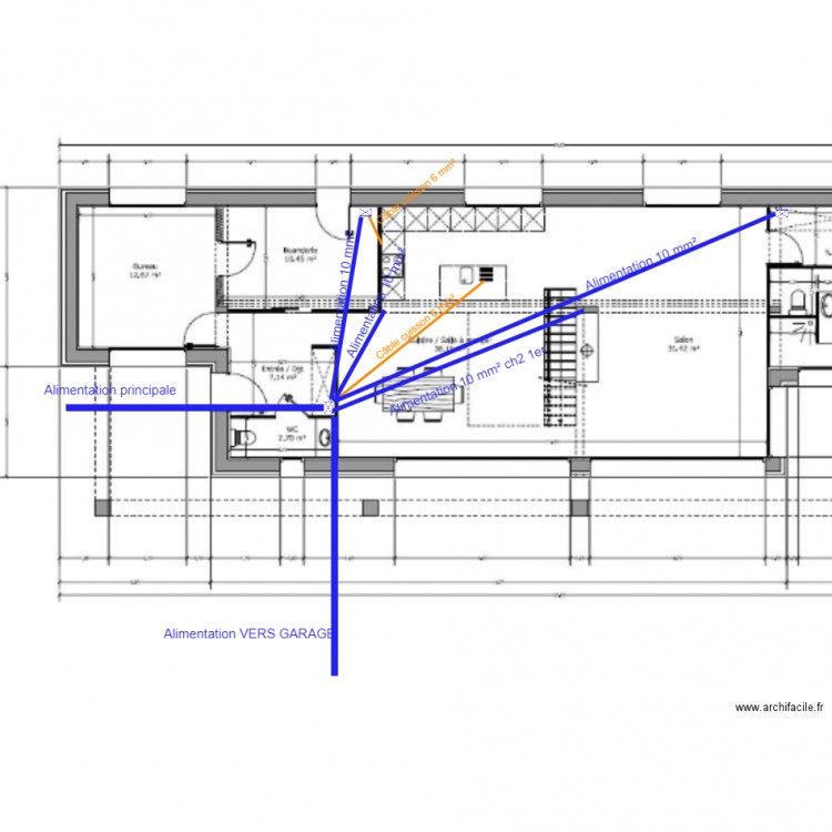
Arrivées électriques et départs vers coffret divisionnaires

Plan de 0 pièce et 0 m2.

Arrivées électriques et départs vers coffret divisionnaires. Plan de 0 pièce et 0 m2

 

Description

schéma câble arrivé -câbles départs- câbles cuisson

Détails du plan

  • Plan commencé le 25/01/18 par bourgraff
  • Modifié le 25/01/18 par bourgraff
  • Partage : Utilisation

Mots clés

A construire A louer A rénover A vendre Appartement Atelier Bureau Chez moi Coupe Duplex Electricité Extension Facade Ferme Garage Jardin Loft Magasin Maison Piscine
  • Liste des pièces

    Aucune pièce n'a été créé sur ce plan.

  • Liste des objets

    Nom de l'objet Nombre
    Texte 8
    Tableau électrique 3

    Lien vers ce plan

    Lien pour partager le plan Arrivées électriques et départs vers coffret divisionnaires


    Image du plan

    Copier et coller le code ci dessous


    Partagez ce plan


    Vous aimez ce plan ?

    Cliquez sur J'aime et gagnez des fonctionnalités