balusseau 4a
Plan de

Détails du plan
- Plan commencé le 02/10/2018 à 15:56 par adapt
- Modifié le 02/10/2018 à 16:18 par adapt
- Partage : Utilisation
Mots clés
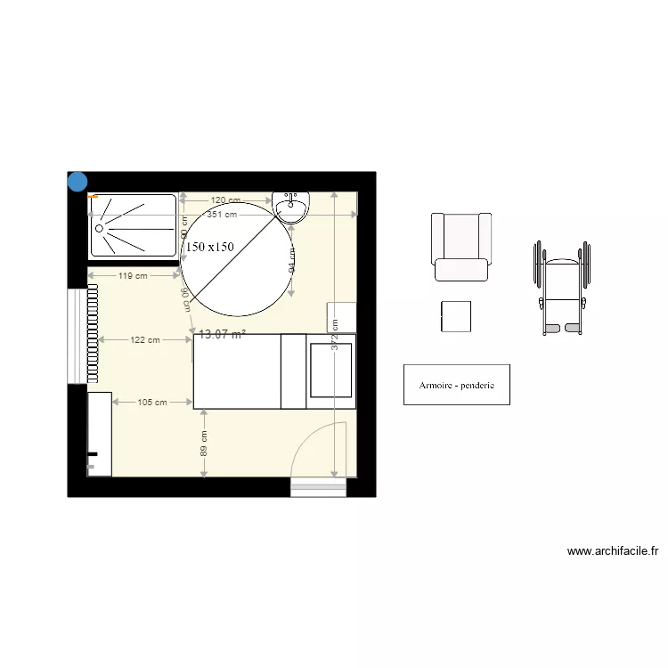
Liste des pièces
Aucune pièce n'a été créé sur ce plan.
Liste des objets
| Nom de l'objet | Nombre |
|---|---|
| Armoire - penderie 150 cm | 1 |
| Commode tiroirs 120 x 50 cm | 2 |
| Etagère redimenssionnable | 1 |
| Fauteuil 1 place | 1 |
| Fauteuil roulant | 1 |
| giration | 1 |
| Lavabo | 1 |
| Lit enfant | 1 |
| Radiateur en fonte 2350 W ( 110 W / élément ) | 1 |
| Receveur douche | 1 |
Lien vers ce plan
Lien pour partager le plan balusseau 4a
Image du plan
Copier et coller le code ci dessous
Partagez ce plan
Vous aimez ce plan ?
Cliquez sur J'aime et gagnez des fonctionnalités