ETAGE5x7x18
Plan de

Description
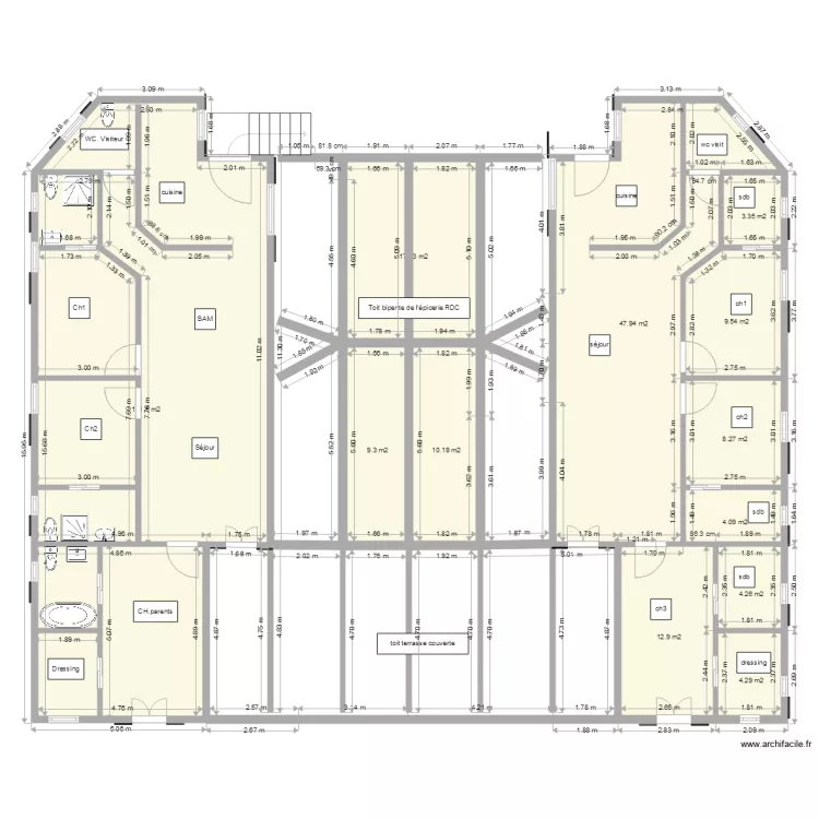
Etage avec 2 appt. Entrée principale via escalier sur le côté. Appt de gauche privée avec grand cellier ou salle des machines et réserves. Mais , Appt de droite destiné à la location ponctuelle, comme un gîte.
Détails du plan
- Plan commencé le 29/12/2014 à 00:11 par ladoken
- Modifié le 29/12/2014 à 14:09 par ladoken
- Partage : Utilisation
Mots clés
Liste des pièces
Aucune pièce n'a été créé sur ce plan.
Liste des objets
Aucun objet n'a été utilisé sur ce plan.
Lien vers ce plan
Lien pour partager le plan ETAGE5x7x18
Image du plan
Copier et coller le code ci dessous
Partagez ce plan
Vous aimez ce plan ?
Cliquez sur J'aime et gagnez des fonctionnalités