Chalet
Plan de

Détails du plan
- Plan commencé le 25/08/2020 à 18:47 par ELECTRICIEN16260
- Modifié le 29/08/2020 à 07:17 par ELECTRICIEN16260
- Partage : Utilisation
Mots clés
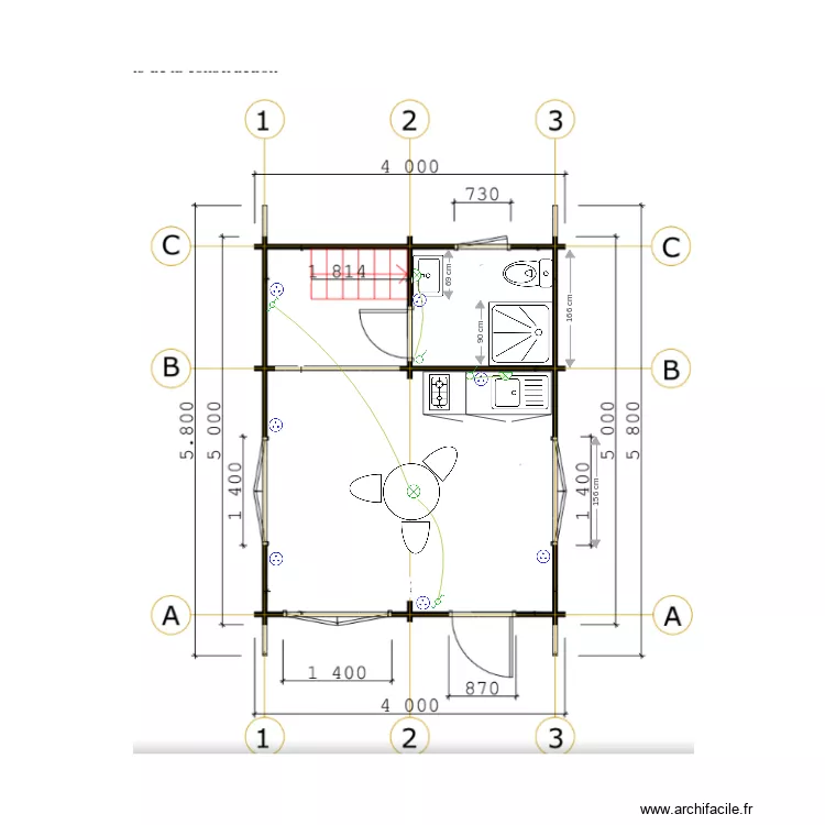
Liste des pièces
Aucune pièce n'a été créé sur ce plan.
Liste des objets
| Nom de l'objet | Nombre |
|---|---|
| Eclairage applique | 2 |
| Eclairage plafond | 1 |
| Évier 1 bac | 1 |
| Interrupteur | 2 |
| Interrupteur va et vient | 2 |
| Meuble 1 lavabo integré | 1 |
| Meuble cuisine 1 porte | 1 |
| Meuble cuisine 2 portes | 1 |
| Plaque gaz 2 foyers | 1 |
| Prise | 7 |
| Receveur douche | 1 |
| Table 3 pers. 80 x 80 cm | 1 |
| WC standard | 1 |
Lien vers ce plan
Lien pour partager le plan Chalet
Image du plan
Copier et coller le code ci dessous
Partagez ce plan
Vous aimez ce plan ?
Cliquez sur J'aime et gagnez des fonctionnalités