Logis-Sanitaire
Plan de

Description
Création appartement dans corps de ferme
Détails du plan
- Plan commencé le 17/05/2022 à 22:01 par Roxane70
- Modifié le 17/05/2022 à 22:39 par Roxane70
- Partage : Lecture
Mots clés
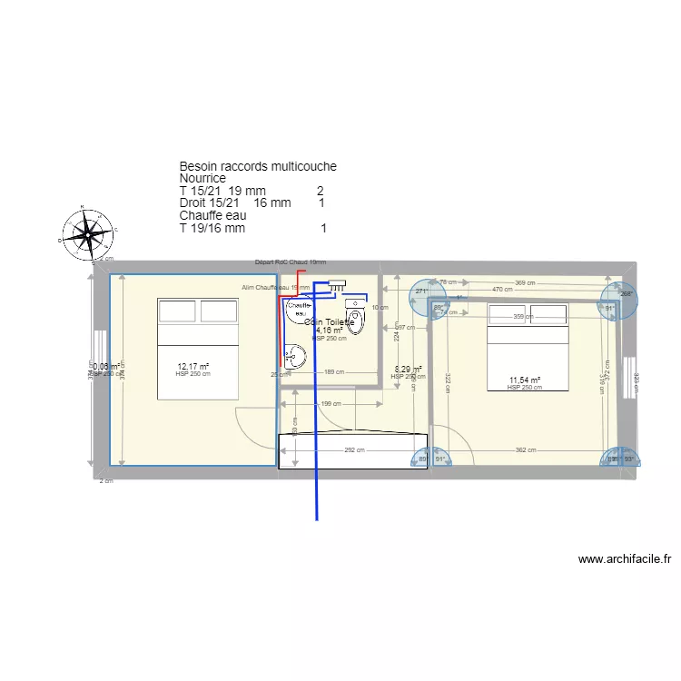
Liste des pièces
Aucune pièce n'a été créé sur ce plan.
Liste des objets
| Nom de l'objet | Nombre |
|---|---|
| Texte | 3 |
| Armoire portes battantes | 1 |
| Bar | 2 |
| Boussole 2 | 1 |
| Boussole 3 | 1 |
| Cabine douche | 1 |
| Chauffe eau | 1 |
| Collecteur 4 départs | 1 |
| Escalier droit | 1 |
| Evier 1 vasque | 1 |
| Lavabo | 1 |
| Lit queen size | 2 |
| Meuble 1 lavabo integré | 2 |
| Plan de travail | 1 |
| Plaque induction 4 foyers avec meuble | 1 |
| Prise TV | 1 |
| Refrigerateur congelateur | 1 |
| WC standard | 3 |
Lien vers ce plan
Lien pour partager le plan Logis-Sanitaire
Image du plan
Copier et coller le code ci dessous
Partagez ce plan
Vous aimez ce plan ?
Cliquez sur J'aime et gagnez des fonctionnalités