chambre 3 new one again
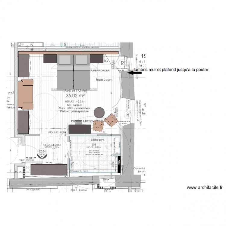
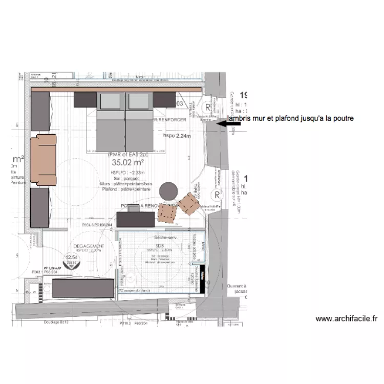
Plan de 0 pièce et 0 m2.

Détails du plan
- Plan commencé le 15/02/2018 à 10:18 par lisapaunovitch
- Modifié le 15/02/2018 à 10:18 par lisapaunovitch
- Partage : Utilisation
Mots clés
Liste des pièces
Aucune pièce n'a été créé sur ce plan.
Liste des objets
| Nom de l'objet | Nombre |
|---|---|
| Texte | 3 |
| Cercle | 1 |
| Chaise haute bar | 1 |
| Fauteuil 1 place | 3 |
| Flêche | 1 |
| Lit enfant | 2 |
| Meuble cuisine 2 portes | 3 |
| Rectangle | 6 |
Lien vers ce plan
Lien pour partager le plan chambre 3 new one again
Image du plan
Copier et coller le code ci dessous
Partagez ce plan
Vous aimez ce plan ?
Cliquez sur J'aime et gagnez des fonctionnalités