etage 2 ch Tim v1
Plan de

Détails du plan
- Plan commencé le 03/06/2020 à 14:59 par pdepeyre
- Modifié le 13/06/2020 à 17:22 par pdepeyre
- Partage : Utilisation
Mots clés
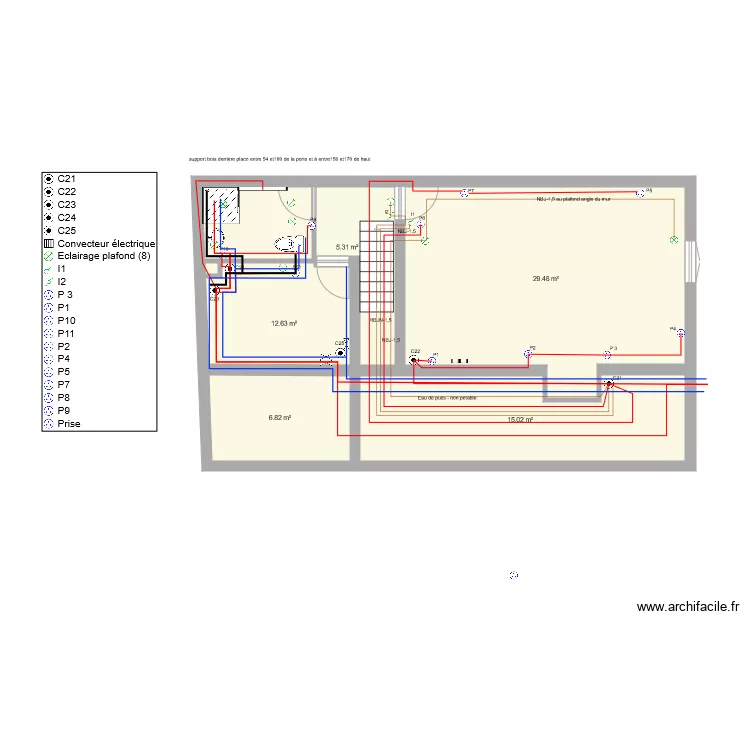
Liste des pièces
Aucune pièce n'a été créé sur ce plan.
Liste des objets
| Nom de l'objet | Nombre |
|---|---|
| Légende | 1 |
| Boite de dérivation | 5 |
| Cabine douche | 1 |
| Convecteur électrique | 1 |
| Eclairage plafond | 8 |
| Escalier droit | 1 |
| Interrupteur | 1 |
| Interrupteur va et vient | 1 |
| Lavabo | 1 |
| Prise | 11 |
| Vanne | 3 |
| WC standard | 1 |
Lien vers ce plan
Lien pour partager le plan etage 2 ch Tim v1
Image du plan
Copier et coller le code ci dessous
Partagez ce plan
Vous aimez ce plan ?
Cliquez sur J'aime et gagnez des fonctionnalités