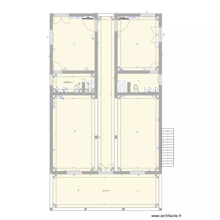
RIAD FIFI RDC ELECTRICITE
Plan de

Détails du plan
- Plan commencé le 31/10/2022 à 11:16 par planetediagnostic
- Modifié le 31/10/2022 à 11:16 par planetediagnostic
- Partage : Utilisation
Mots clés
Liste des pièces
Aucune pièce n'a été créé sur ce plan.
Liste des objets
| Nom de l'objet | Nombre |
|---|---|
| Climatiseur Split interieur | 2 |
| Eclairage applique | 12 |
| Eclairage plafond | 8 |
| Escalier droit | 1 |
| Interrupteur | 3 |
| Interrupteur bouton poussoir | 3 |
| Interrupteur bouton poussoir avec voyant | 2 |
| Interrupteur va et vient | 4 |
| Meuble 2 vasques | 2 |
| Prise | 25 |
| Prise haute | 11 |
| Prise TV | 2 |
| Receveur douche extra plat | 2 |
| Tableau électrique | 2 |
| WC standard | 2 |
Lien vers ce plan
Lien pour partager le plan RIAD FIFI RDC ELECTRICITE
Image du plan
Copier et coller le code ci dessous
Partagez ce plan
Vous aimez ce plan ?
Cliquez sur J'aime et gagnez des fonctionnalités