plancher2500x675
Plan de

Description
aménagement interieur
Détails du plan
- Plan commencé le 21/07/2022 à 07:38 par DS88
- Modifié le 21/07/2022 à 07:50 par DS88
- Partage : Utilisation
Mots clés
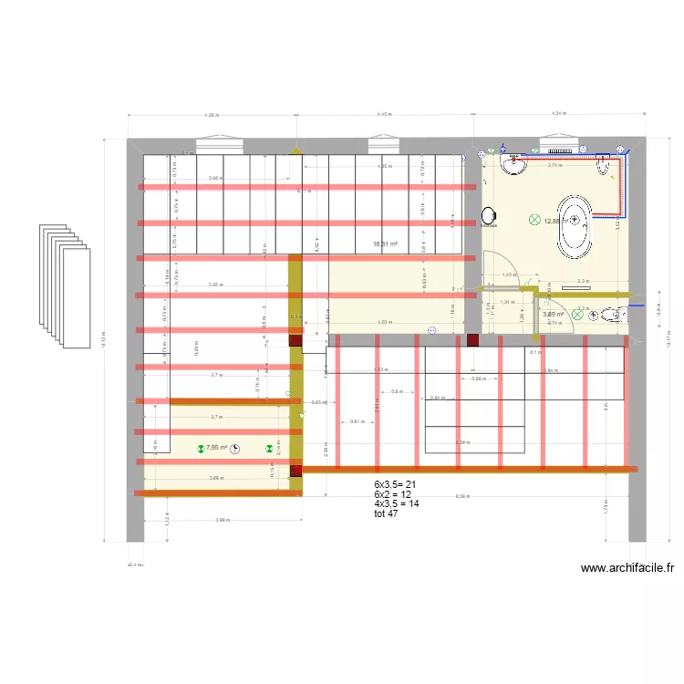
Liste des pièces
Aucune pièce n'a été créé sur ce plan.
Liste des objets
| Nom de l'objet | Nombre |
|---|---|
| Texte | 1 |
| Baignoire îlot ancienne | 1 |
| Bidet | 1 |
| Convecteur électrique | 2 |
| Eclairage applique | 2 |
| Eclairage plafond | 2 |
| Eclairage spot | 2 |
| Interrupteur | 5 |
| Lavabo | 1 |
| Poubelle | 1 |
| Prise | 7 |
| Prise Rasoir | 1 |
| Prise sans terre | 3 |
| Rectangle | 31 |
| Sèche-serviettes électrique à inertie 1000 W | 1 |
| VMC bouche d'extraction | 3 |
| WC standard | 1 |
Lien vers ce plan
Lien pour partager le plan plancher2500x675
Image du plan
Copier et coller le code ci dessous
Partagez ce plan
Vous aimez ce plan ?
Cliquez sur J'aime et gagnez des fonctionnalités