plancuisine072021
Plan de

Détails du plan
- Plan commencé le 08/07/2021 à 17:39 par architri
- Modifié le 08/07/2021 à 20:09 par architri
- Partage : Utilisation
Mots clés
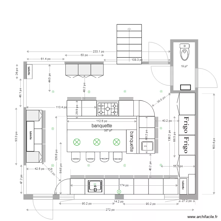
Liste des pièces
Aucune pièce n'a été créé sur ce plan.
Liste des objets
| Nom de l'objet | Nombre |
|---|---|
| Texte | 5 |
| Bar | 4 |
| Chaise haute bar | 4 |
| Eclairage plafond | 15 |
| Escalier droit | 1 |
| Etagère redimenssionnable | 3 |
| Evier 1 vasque | 1 |
| Lave main | 1 |
| Meuble cuisine 2 portes | 2 |
| Meuble cuisine 3 tiroirs | 16 |
| Meuble cuisine haut 80 cm | 5 |
| Piano de cuisson 5 foyers | 1 |
| Plan de travail bout arrondi | 1 |
| Quart de cercle | 2 |
| Rectangle | 2 |
| Réfrigérateur | 2 |
| WC standard | 1 |
Lien vers ce plan
Lien pour partager le plan plancuisine072021
Image du plan
Copier et coller le code ci dessous
Partagez ce plan
Vous aimez ce plan ?
Cliquez sur J'aime et gagnez des fonctionnalités