LESSINES simple 23-11-2022
Plan de

Détails du plan
- Plan commencé le 24/11/2022 à 13:25 par ANCOR60
- Modifié le 24/11/2022 à 13:25 par ANCOR60
- Partage : Utilisation
Mots clés
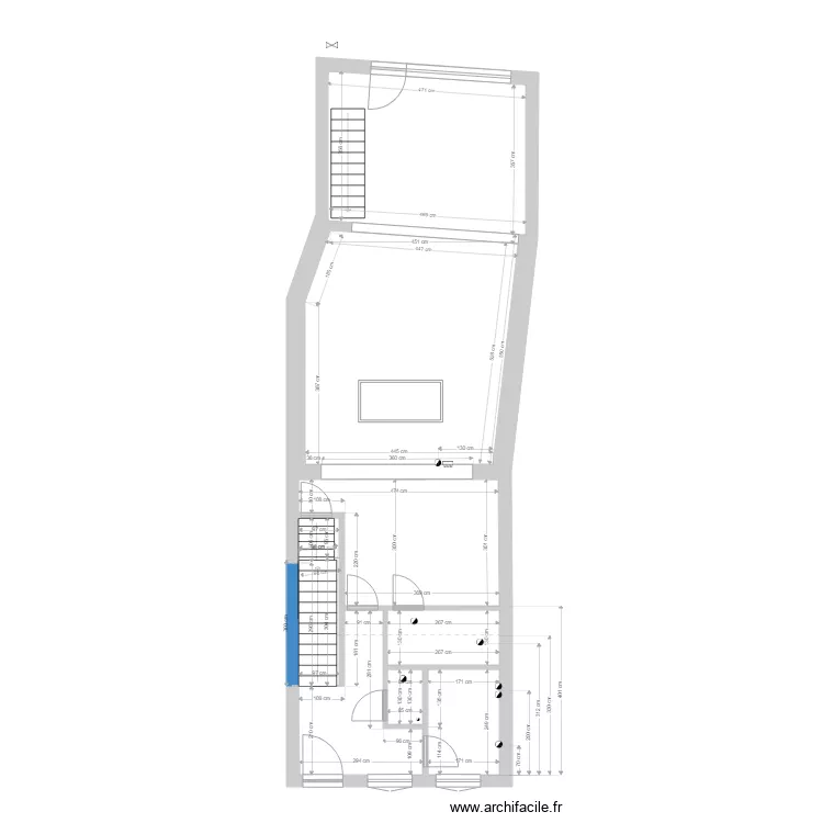
Liste des pièces
Aucune pièce n'a été créé sur ce plan.
Liste des objets
| Nom de l'objet | Nombre |
|---|---|
| Collecteur 3 départs | 1 |
| Escalier droit | 5 |
| Fenêtre de toit | 2 |
| Meuble 2 lavabos | 1 |
| Purgeur à condensation | 8 |
| Receveur douche | 1 |
| Vanne | 1 |
| WC standard | 1 |
Lien vers ce plan
Lien pour partager le plan LESSINES simple 23-11-2022
Image du plan
Copier et coller le code ci dessous
Partagez ce plan
Vous aimez ce plan ?
Cliquez sur J'aime et gagnez des fonctionnalités