val d'ore
Plan de

Détails du plan
- Plan commencé le 27/10/2023 à 18:12 par MAKAKO
- Modifié le 27/10/2023 à 18:12 par MAKAKO
- Partage : Utilisation
Mots clés
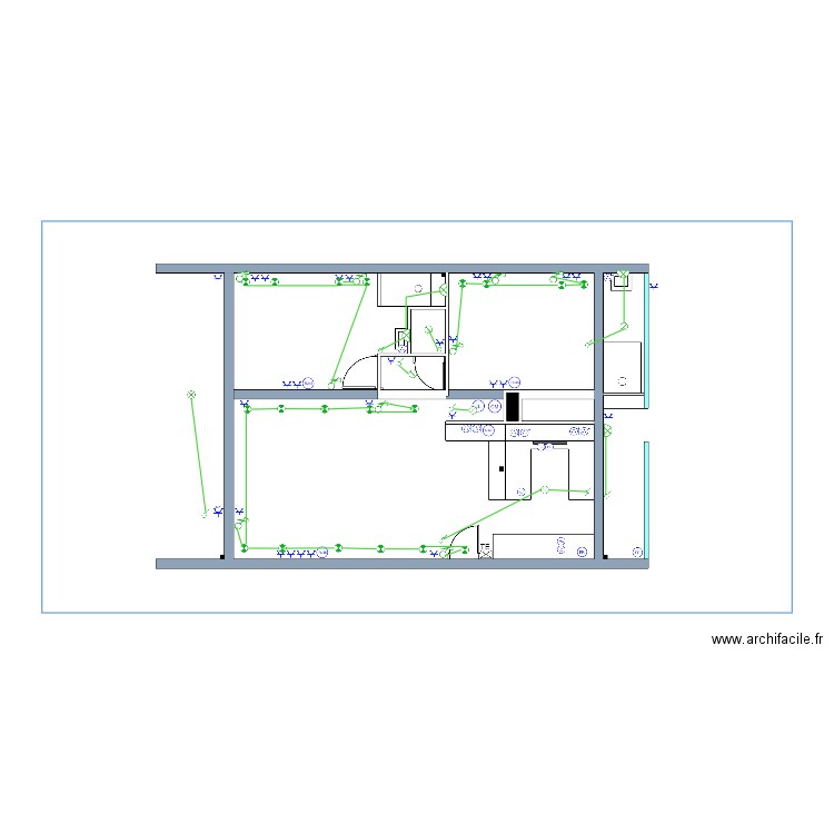
Liste des pièces
Aucune pièce n'a été créé sur ce plan.
Liste des objets
| Nom de l'objet | Nombre |
|---|---|
| Eclairage applique | 4 |
| Eclairage plafond | 6 |
| Eclairage spot | 19 |
| Interrupteur | 7 |
| Interrupteur va et vient | 2 |
| Interrupteur variateur | 9 |
| Prise | 27 |
| Prise 32 A | 1 |
| Prise Cumulus | 1 |
| Prise four | 1 |
| Prise haute | 8 |
| Prise lave linge | 1 |
| Prise lave vaisselle | 1 |
| Prise plaque de cuisson | 1 |
| Prise réfrigérateur | 2 |
| Prise réseau RJ45 | 4 |
Lien vers ce plan
Lien pour partager le plan val d'ore
Image du plan
Copier et coller le code ci dessous
Partagez ce plan
Vous aimez ce plan ?
Cliquez sur J'aime et gagnez des fonctionnalités