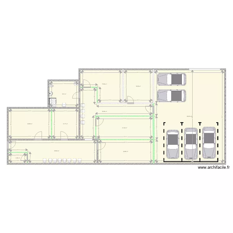
PROJET 262 VERSION 1
Plan de

Détails du plan
- Plan commencé le 17/10/2025 à 08:44 par TEDESCHI
- Modifié le 17/10/2025 à 09:10 par TEDESCHI
- Partage : Utilisation
Mots clés
Liste des pièces
Aucune pièce n'a été créé sur ce plan.
Liste des objets
| Nom de l'objet | Nombre |
|---|---|
| Cabine douche | 1 |
| Chaise | 1 |
| Chaise | 12 |
| Chauffe eau | 1 |
| Lavabo | 1 |
| Parking | 1 |
| Voiture citadine | 3 |
| Voiture familiale ou berline | 2 |
| WC suspendu | 1 |
Lien vers ce plan
Lien pour partager le plan PROJET 262 VERSION 1
Image du plan
Copier et coller le code ci dessous
Partagez ce plan
Vous aimez ce plan ?
Cliquez sur J'aime et gagnez des fonctionnalités