projet chantal macherie
Plan de 0 pièce et 0 m2.

Description
maison mcd
Détails du plan
- Plan commencé le 14/02/2024 à 17:00 par Kaniar974
- Modifié le 14/02/2024 à 17:01 par Kaniar974
- Partage : Utilisation
Mots clés
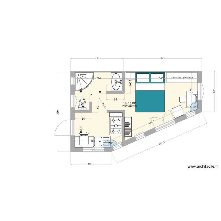
Liste des pièces
Aucune pièce n'a été créé sur ce plan.
Liste des objets
| Nom de l'objet | Nombre |
|---|---|
| Armoire - penderie 150 cm | 1 |
| Bibliothèque | 1 |
| Cabine douche quart de cercle | 1 |
| Chaise | 1 |
| Coiffeuse 100 X 50 cm | 1 |
| Commode tiroirs 80 x 50 cm | 1 |
| Évier 1 bac | 1 |
| Lit double standard | 1 |
| Meuble lavabo intégré | 1 |
| Piano de cuisson 5 foyers | 1 |
| Rectangle | 2 |
| Table de chevet | 1 |
| WC petite taille | 1 |
Lien vers ce plan
Lien pour partager le plan projet chantal macherie
Image du plan
Copier et coller le code ci dessous
Partagez ce plan
Vous aimez ce plan ?
Cliquez sur J'aime et gagnez des fonctionnalités