BATIMENT CAMPING LAC GRANDE FOURCHE
Plan de 13 et 303 m²

Détails du plan
- Plan commencé le 04/02/2026 à 22:00 par SaintHubert
- Modifié le 09/02/2026 à 17:44 par SaintHubert
- Partage : Utilisation
Mots clés
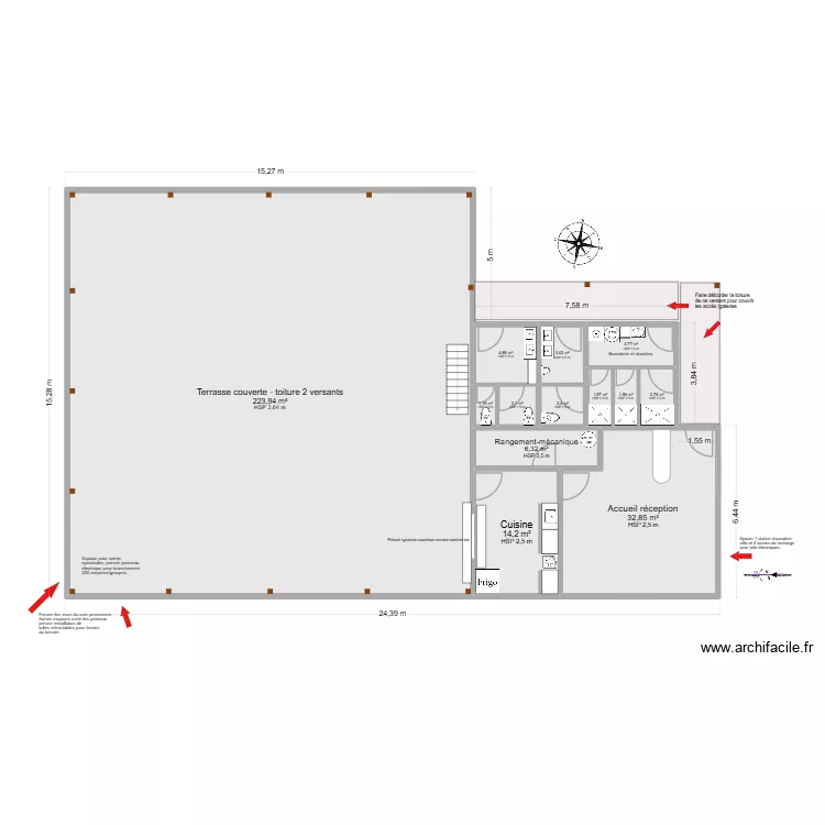
Liste des pièces
- Terrasse couverte - toiture 2 versants
- Rangement-mécanique
- Accueil réception
- Cuisine
Liste des objets
| Nom de l'objet | Nombre |
|---|---|
| Texte | 6 |
| Boussole 2 | 1 |
| Chauffe eau | 1 |
| Escalier droit | 1 |
| Evier 1 vasque | 1 |
| Flêche | 5 |
| Lave linge hublot | 1 |
| Meuble 2 lavabos | 2 |
| Meuble cuisine 3 tiroirs | 3 |
| Meuble lavabo intégré | 1 |
| Meuble tiroir | 2 |
| Plan de travail | 2 |
| Plan de travail bout arrondi | 1 |
| Plaque électrique avec meuble | 1 |
| Poteau bois | 16 |
| Receveur douche extra plat | 3 |
| Rectangle | 2 |
| Réfrigérateur | 1 |
| Sèche linge | 1 |
| Urinoir | 1 |
| Velo ville | 1 |
| WC standard | 3 |
Lien vers ce plan
Lien pour partager le plan BATIMENT CAMPING LAC GRANDE FOURCHE
Image du plan
Copier et coller le code ci dessous
Partagez ce plan
Vous aimez ce plan ?
Cliquez sur J'aime et gagnez des fonctionnalités
Plans de 13 pièces et de 290 à 310 m2
Voir tout les plans de 13 pièces et de 290 à 310 m2
Plans de 13 pièces
Voir tout les plans de 13 pièces
Plans de 290 à 310 m2
Voir tout les plans de 290 à 310 m2