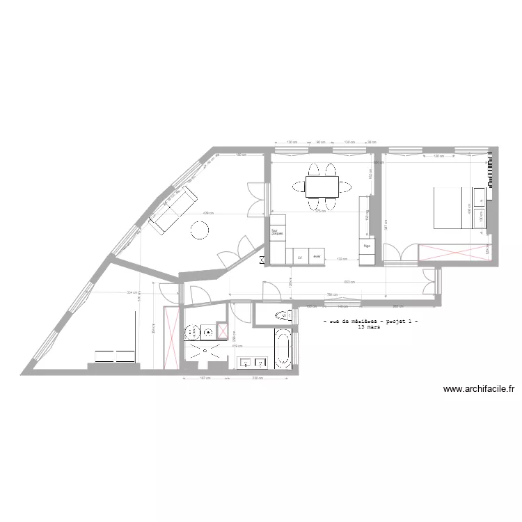
mezieres projet 1 13 mars
Plan de

Détails du plan
- Plan commencé le 13/03/2020 à 19:17 par serralunga
- Modifié le 15/03/2020 à 22:40 par serralunga
- Partage : Utilisation
Mots clés
Liste des pièces
Aucune pièce n'a été créé sur ce plan.
Liste des objets
| Nom de l'objet | Nombre |
|---|---|
| Texte | 5 |
| Baignoire rectangulaire (encastrable) | 1 |
| Bibliothèque | 1 |
| Canapé 3 places | 1 |
| Chauffe eau | 1 |
| Lave linge hublot | 1 |
| Lit queen size | 2 |
| Meuble 2 lavabos | 1 |
| Receveur douche extra plat | 1 |
| Rectangle | 10 |
| Table 4 - 6 pers. 80 x 125 cm | 1 |
| Table basse | 1 |
| Tableau électrique | 1 |
| WC petite taille | 1 |
Lien vers ce plan
Lien pour partager le plan mezieres projet 1 13 mars
Image du plan
Copier et coller le code ci dessous
Partagez ce plan
Vous aimez ce plan ?
Cliquez sur J'aime et gagnez des fonctionnalités