EVANS SDB etage
Plan de

Détails du plan
- Plan commencé le 07/02/2023 à 15:57 par greglett
- Modifié le 07/02/2023 à 15:57 par greglett
- Partage : Utilisation
Mots clés
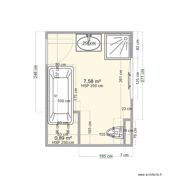
Liste des pièces
Aucune pièce n'a été créé sur ce plan.
Liste des objets
| Nom de l'objet | Nombre |
|---|---|
| Baignoire îlot rectangulaire | 1 |
| Meuble lavabo intégré | 1 |
| Receveur douche | 1 |
| Sèche-serviettes électrique à inertie 1000 W | 1 |
| WC suspendu | 1 |
Lien vers ce plan
Lien pour partager le plan EVANS SDB etage
Image du plan
Copier et coller le code ci dessous
Partagez ce plan
Vous aimez ce plan ?
Cliquez sur J'aime et gagnez des fonctionnalités