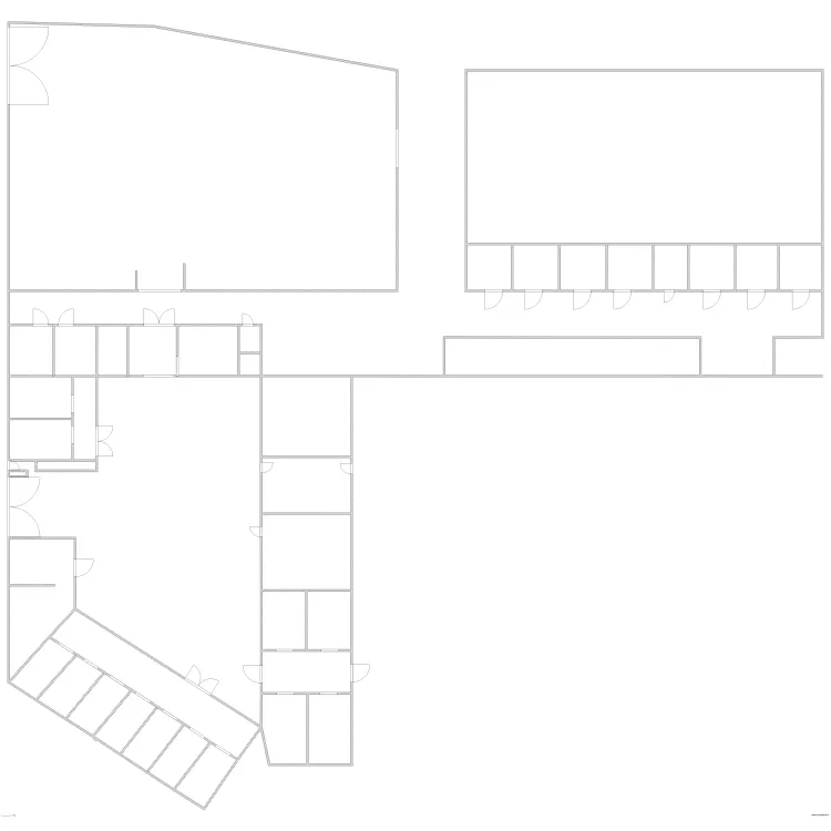
Aux écuries de Passy
Plan de

Détails du plan
- Plan commencé le 23/03/2010 à 22:19 par Diurn
- Modifié le 22/04/2010 à 16:42 par Diurn
- Partage : Utilisation
Mots clés
Liste des pièces
Aucune pièce n'a été créé sur ce plan.
Liste des objets
Aucun objet n'a été utilisé sur ce plan.
Lien vers ce plan
Lien pour partager le plan Aux écuries de Passy
Image du plan
Copier et coller le code ci dessous
Partagez ce plan
Vous aimez ce plan ?
Cliquez sur J'aime et gagnez des fonctionnalités