Mur Côté Porte
Plan de

Détails du plan
- Plan commencé le 05/02/2017 à 15:34 par karakom
- Modifié le 20/02/2018 à 12:42 par karakom
- Partage : Utilisation
Mots clés
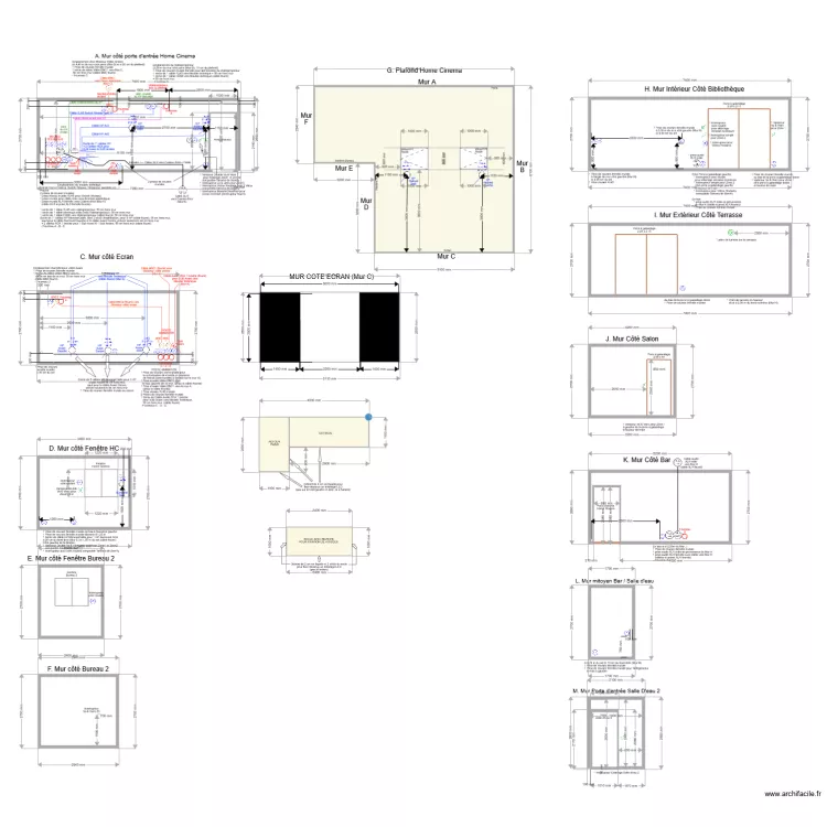
Liste des pièces
Aucune pièce n'a été créé sur ce plan.
Liste des objets
| Nom de l'objet | Nombre |
|---|---|
| Texte | 110 |
| Eclairage projecteur | 1 |
| Flêche | 9 |
| Flêche | 1 |
| Fourreau | 7 |
| Inter Ecran | 1 |
| Interrupteur | 1 |
| Interrupteur avec voyant | 1 |
| Interrupteur double va et vient | 2 |
| Interrupteur va et vient | 5 |
| Prise | 21 |
| Prise commandée | 1 |
| Prise réfrigérateur | 1 |
| Prise réseau RJ45 | 5 |
| Prise TV, SAT, FM | 1 |
| Prise volet roulant | 4 |
Lien vers ce plan
Lien pour partager le plan Mur Côté Porte
Image du plan
Copier et coller le code ci dessous
Partagez ce plan
Vous aimez ce plan ?
Cliquez sur J'aime et gagnez des fonctionnalités